Выбор бюджетного материала для строительства
Соотношение цены и качества строительных материалов обдумывает большинство хозяев будущего коттеджа, особенно если бюджет ограничен.
Для строительства используют:
- пенобетонные блоки;
 - газобетон;
 - клееный брус;
 - СИП-панели;
 - оцилиндрованное бревно;
 - кирпич;
 - арболит.
 
Каждый из перечисленных материалов имеет свои преимущества и слабые стороны. Дизайн сооружения зависит от того, из чего оно построено: канадский, альпийский стили выполняются из бревен, которые предварительно следует оцилиндровать, средневековую стилистику воссоздают исключительно из кирпича, как и готику. Для конструктивизма, кубизма, греческого варианта подойдут пеноблоки, а дом в экологическом, кантри и японском стиле часто строят из клееного бруса.
Пенобетон
Блоки пористого ячеистого бетона обладают малым весом, высокими теплоизоляционными свойствами, пониженной гигроскопичностью, долговечностью. Материал устойчив к воздействию огня, через него легко проложить любые коммуникации, проделав необходимые отверстия путем штробления. Дом из пеноблоков, газоблоков строится очень быстро, а цена квадратного метра стены выходит на 25-35% дешевле, чем выполненной из кирпича. Сильно утеплять строение не обязательно, как и делать чрезмерно тяжелый фундамент.
К недостаткам материала относят пористость, усложняющую монтирование креплений, длительный период усадки готовой конструкции. Бетонные стены нуждаются в армировании, они некрасиво выглядят без отделки специальной краской, штукатуркой.
Брус
Профилированные брусовые конструкции подвергаются самым минимальным деформациям по винтовой линии – материал не коробится, готовый домик не требуется конопатить, хватит уплотнительных прокладок. Усадка здесь самая минимальная, потому строительство удастся выполнить в самые короткие сроки. Отделка также не обязательна – стенки выйдут гладкими.
Минусы бруса в том, что все детали сооружения необходимо периодически обрабатывать антисептическими составами, а для круглогодичного проживания желательно обшить конструкцию изнутри вагонкой либо другим подобным материалом.
Каркасно-щитовой дом или СИП-панель
Каркасно-щитовой вариант и постройка из СИП-панелей – это два разных способа строительства. Каркасный домик строится относительно долго, ему требуется ленточный фундамент, а его каркас не слишком прочен, так как детали соединяются между собой точечно. Конструкцию из СИП-панелей иногда возводят за считанные дни, элементы строения связаны друг с другом достаточно жестко, а облицовка с утеплителем – по всей поверхности. Фундамент подойдет столбчатый либо свайный.
Стоимость постройки из панелей СИП высока, но и качество выходит соответствующее. Такой домик прослужит до ста лет, тогда как каркасный – максимум 35-45
Основной недостаток СИП-панелей – низкая воздухопроницаемость, потому устройство принудительной вентиляции здесь наиболее важно
Кирпич
Кирпичный дом экологичен, прочен, надежен. Строится он сравнительно быстро – ждать усадки материала не требуется. Кирпич не гниет, не повреждается жучкам, плесенью, потому обработки антисептиком не требует. Тепло в таком домике сохраняется отлично, постройка влагонепроницаемая, пожаробезопасная, имеет эстетичный внешний вид.
Минусы сооружения в цене строительства – кладка кирпича, его стоимость достаточно велика и расходы возрастают с увеличением этажности. Устройство максимально прочного фундамента из высококачественного бетона также необходимо, так как кирпич очень тяжелый материал.
Достоинства и недостатки каркасных домов
Выбирая способ возведения, хозяин просматривает плюсы и минусы различных строений.
К преимуществам каркасников относят:
Сравнительно недорогая стоимость застройки. На обустройство фундамента, отделку и материалы для возведения стен смета будет ниже, чем при использовании блочного, штучного материала или ж/б конструкций. Нет необходимости использования тяжелой специальной техники. Мокрые работы сведены к минимуму. Что касается земляных работ, то их объем зависит от выбора основания, например, обустройство свай обойдется практически без рытья траншей. Оперативность. Средний по размерам каркасный дом 6 на 6 м своими руками три мастера соорудят за 3 месяца, плюс 2-2,5 месяца на отделку. Итого, при условии наличия всех материалов, от начала до конца цикл занимает не более полугода – это очень быстро. Нетребовательность в уходе. Если выбран качественный материал, строения из оцилиндрованного бревна или клееного бруса не нуждаются в регулярной пропитке антисептиками, прочими смесями. Дом не дает усадки, как другие деревянные сооружения. Технологию применяют для сооружения объектов на нестойких, сейсмоопасных грунтах. Качественная тепло-, гидроизоляция надежно защищает жилой дом от теплопотерь, посторонних шумов. Небольшая толщина стен облегчает доступ к содержимому
Это важно для работ по дополнительному утеплению, внутренней прокладке кабелей и пр. Деревянные панели не обладают значительной массой, это позволяет сэкономить на фундаменте
Гладкие фрагменты стен не нужно штукатурить перед отделкой. Свойство не ограничивает варианты декорирования с возможностью дополнительного утепления, изоляции. При необходимости каркасный дом быстро разбирают и перевозят на новое место
Правильный демонтаж – залог успешной и оперативной повторной сборки.
Минусы тоже есть:
Для получения качественного результата не экономят на проекте. Если нет знаний, планировку и создание проекта поручают специалистам. Опытный мастер разработает план с учетом узлов, соединений, коммуникаций и пр. Дерево считают горючим материалом, поэтому к выбору подходят с особой тщательностью. Покупают материалы хорошей степени просушки, обработанные антипиреном
Защитную пропитку от огня периодически подновляют
При сооружении двух и более этажного объекта уделяют внимание звукоизоляции перекрытий, стен. В противном случае гул и вибрация при хождении будут слышны по всему дому
Плюсов больше, поэтому технология строительства востребована и популярна в самых разных климатических зонах. Благодаря отсутствию циклов мокрых работ застройку ведут в любое время года.
С мансардой
Частный дом 8х6 метров с мансардой считается не только отличным вариантом жилья, который можно оригинально обустроить, но и является примером экономичного вида строительства, позволяющим значительно сэкономить средства на возведении и отделке. Чердачное помещение в таких зданиях можно использовать в качестве жилой комнаты, благодаря чему возможности планировки увеличиваются.
Обычно на первом этаже располагаются большая кухня-гостиная и холл, а на втором – спальня. Проект дома 8 на 6 м2 хорош тем, что он предусматривает наличие большого количества жилых комнат, красивый зал с лестницей и дополнительный этаж. Если же верхнее помещение не эксплуатируется зимой, то его нужно отделить плотной дверью, которая надежно защитит здание от потоков холодного воздуха.
Существует множество проектов дома с мансардой, но в каждом из них главной комнатой считается холл, он выступает центральным помещением, из которого можно попасть в любую зону постройки. Часто холл соединяют с гостиной, в результате чего получается большое и просторное помещение.
Кроме этого, подобная планировка очень удобна: семья собирается за одним большим столом, а потом каждый из жильцов может комфортно отдохнуть в своей комнате.
Обычно в таких домах делается два входа, и на кухню можно войти через боковую лестницу. Это облегчает уборку, так как вся грязь с улицы остается только в одной комнате. Хорошо подходит проект с отдельным входом на кухню и для владельцев, которые любят выращивать на огороде зелень и овощи, таким образом, все свежие продукты попадают прямо на разделочный стол. Для молодых семей, планирующих в будущем обзавестись детьми, нужно предусмотреть в доме не только наличие спальни, но и детской комнаты, игровых уголков. Не помешает также и небольшая спортивная зона.
Дома 8х6 метров можно обеспечить небольшими баллончиками, а если установить один французский балкон, он станет оригинальной частью жилой комнаты. Помещение под гардеробную в здании отводится на личное усмотрение хозяев, как правило, площадь дома позволяет оборудовать ее размером до 2 м2, где удобно разместится самая необходимая корпусная мебель. Проект такого жилья для семьи, состоящей из трех человек, предусматривает обязательное наличие кухни, холла и гостиной. При этом все вышеперечисленные комнаты можно дополнительно зонировать. Чтобы придать дому уютный вид, рекомендуется пристроить небольшую веранду.
Разные проекты домиков с мансардой можно посмотреть в следущем видеоролике.
Материалы для постройки дома 6х6
Традиционно дачные дома возводят из легких и доступных материалов. В настоящее время все большей популярностью пользуется тип строения каркасный одноэтажный дом. Его можно поставить на участке за считаные дни, работа не требует специальных навыков и участия большого количества людей. Для постройки жилья на даче чаще всего используют:
- деревянный брус;
 - доску;
 - СИП-панели;
 - ОСБ-плиты;
 - мягкие кровельные материалы;
 - шифер.
 
Поскольку общий вес такой конструкции весьма незначительный, то фундамент для него делается обычный, ленточного типа. На его изготовление идет песок средней фракции, мелкий щебень и цемент марки не ниже М400.

Вариант проекта коттеджа 6 на 6 метров
В зависимости от выбранного материала для возведения стен, строения делят на каркасные и домов из бруса.
Проекты домов из бруса 6 х 6 с мансардой: чертежи и внутренняя планировка
Когда встает вопрос о планировке дома с площадью 6 на 6, следует учитывать, для каких целей он строится. Если это домик для летнего загородного отдыха, то основную часть дома отводят для комнат жилого назначения, а для отдыха оставляют минимальное количество места. Как правило, зону отдыха в дачных домах обустраивают на террасе или рядом с домом на специальной площадке.
 
 Правильное расположение комнат с террасой для отдыхаИсточник Skpomestie.ru
А вот если дом предназначен для проживания в нем круглый год, то площадь для жилых комнат остается небольшая. Ведь нужно место для общих помещений, таких как кладовая или гардеробная, которые помогут содержать дом в чистоте и порядке.
 
 Рациональное расположение комнат с площадью для технического помещения или гардеробнойИсточник Domostroev.com
При планировании двухэтажного дома с такой площадью есть один существенный недостаток. Места для лестницы на второй этаж или мансарду остается очень мало. Как итог – она будет очень крутой, что значительно затруднит по ней подъем пожилых людей и детей.
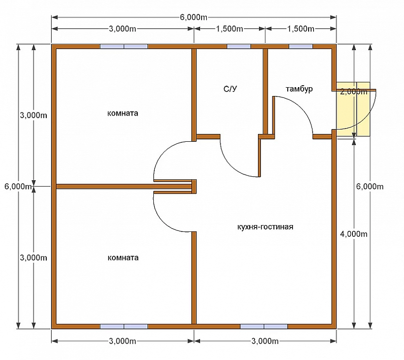
Для одноэтажного дома
Одноэтажный дом площадью 6х6 имеет не так много вариантов планировки, как двухэтажные дома. Ведь на одной площади необходимо расположить все необходимые помещения и разделить их тонкими перегородками.
Если в доме будет проживать семья из двух человек, то можно сделать просторную кухню, спальню и санузел. Тогда каждое из помещений будет иметь достаточную площадь для комфортного проживания.
 
 Планировка дома для семьи из двух человекИсточник Ooo-skp.ru
Когда строительство планирует семья с ребенком, то необходимо будет оборудовать детскую комнату. Для нее следует отнимать площадь от кухни и родительской спальни.
 
 Планировка дома площадью 6х6 с двумя изолированными комнатами для родителей и ребенкаИсточник Dobrodom75.ru
Не стоит забывать и об обогреве дома. При планировании одноэтажного проекта предусматривается установка печи посередине дома. Такое расположение позволит одинаково обогревать все помещения, а так же разделит кухню и помещения для отдыха.
Для двухэтажного дома
Если предусматривается планировка дома 6х6 с мансардой, то жилая площадь будет уже не 36 кв.м, а 40-44 кв.м. При выборе крыши стоит заранее определиться с количеством спален на чердаке. Если будет одна большая спальня, то крышу можно сделать двухскатную.
 
 Правильное расположение комнат в доме с мансардой и одной комнатойИсточник Daromdoma.ru
А когда в плане указывается две или три небольших комнаты, то стоит остановить выбор на вальмовой крыше. Под такой крышей можно сделать дополнительные помещения, например, гардеробную.
 
 Расположение комнат на первом и втором этаже с отведением места для гардеробнойИсточник Domikbani.ru
На первом этаже здания располагаются кухня, гостиная, санузел и прихожая. А так же уделяется место и для лестницы. А в мансарде уже обустраиваются спальные комнаты.
Планировка такого дома имеет значительные преимущества. Спальные комнаты закрыты от посторонних людей, так как располагаются этажом выше. К тому же расширение жилой площади за счет строительства мансарды позволяет поставить дом для небольшой семьи в ограниченном пространстве.
Чтобы получить дополнительное пространство для отдыха, то следует на втором этаже сделать небольшой балкон или лоджию. Там можно поставить пару кресел и стол, и таким образом получить дополнительное помещение.
 
 Рациональное расположение комнат дома с мансардой и отведением места для оборудования балконаИсточник Banivsem.ru
Специалисты рекомендуют проводить строительство домов такой площади именно с мансардой. Тогда само строение будет выглядеть пропорциональным, а на несущую конструкцию не будет создаваться большая нагрузка, а это защитит от сильной усадки.
При планировании места установки лестницы стоит помнить, что ее минимальная ширина составляет 1 метр. Тогда по ней можно будет безопасно передвигаться и избежать травм.
Для санузла отводится небольшое помещение, в нем лучше располагать не ванную, а душевую кабину: тогда места понадобится меньше.
 
 Рациональная планировка санузла на первом этаже дома с мансардойИсточник Autogear.ru
Если один из членов семьи имеет надомную работу, то на первом этаже можно расположить изолированный кабинет в дальнем углу дома.
Каркас дома из бруса 150х150 своими руками
Каркасная технология необыкновенно популярна в частном малоэтажном строительстве. Сооружение такое имеет небольшой вес, а, значит, не требует заглубленного фундамента, довольно быстро возводится, и подходит для возведения как временных жилищ, так и стационарных.
Каркас из бруса
Как собрать дом из бруса 150х150 своими руками +Фото и — Подробная инструкция
В статье рассказывается о возможности самостоятельного возведения сруба дома из бруса 150х150 своими руками, расскажем в подробной инструкции с фото и видео материалами.
Раскрываются некоторые секреты для успешного выполнения основных мероприятий по строительству дома.
Как экономно, но, не теряя в качестве, обзавестись собственным жильём на долгие годы.
На что обратить внимание и правильно сделать работу
Как воплотить заветную мечту о собственном доме?
Это легко сделать самому. Построить себе дом своими руками легче из деревянного бруса. Дерево относится к традиционным материалам, качество проверенное временем.
Производство готового бруса хвойных пород в наше время представлено широким количеством вариантов. При наличии готового проекта есть возможность заказать материал под шаблон.
Производство будет длительным по времени, но компенсируется при монтаже.
7 шагов к реализации мечты
После принятия решения о строительстве жилья, необходимо провести ряд подготовительных мероприятий.
Лучшим временем для этого считается поздняя осень и зимнее время. На все действия необходимо потратить много времени и желательно подгадать этот период к началу строительного сезона с середины вены до ранней осени:
- Определится с выбором участка.
 - Заказать или купить готовый типовой проект для дома.
 - Заказать и приобрести основной материал.
 - Выполнить подготовительные работы.
 - Заготовить расходные материалы.
 - Закупить инструмент.
 - Заключить договора с подрядчиками.
 
Первый этап. Подготовка земельного участка
- очистка от мусора и растительности,
 - выравнивание выполняется с помощью специальной техники,
 - разметка опалубки под фундамент с помощью колышков, шнура и нивелира,
 
Важно! Необходимо воспользоваться услугой специалиста. От этого процесса зависит качество постройки
Материалы
Применяемый материал для самостоятельного монтажа должен быть сухим и лёгким
- Брус сечением не более 150 Х150 мм. Предварительно его обрабатывают специальным антисептическим раствором для предотвращения возникновения грибка и плесени.
 - Джутовый уплотнитель.
 - Деревянные нагели. Шпильки для крепления бруса между собой в венцах.
 - Доски. Для устройства косяков под двери и окна, для монтажа кровли.
 
Процесс работ
Первый венец укладывается на фундамент по периметру. Предварительно фундамент укладывают рубероид, в качестве гидроизоляции, и слой джута.
Для информации! Венцом называют ряды бруса уложенные вертикально. Джутовый уплотнитель необходим для герметизации швов между брусом.
Последующие венцы монтируются по раскладке проекта. Между собой деревянные детали соединяются нагелями. Сквозные отверстия просверливаются меньшим диаметром, чем толщина шпильки. Забивают её молотком, лишнюю выступающую часть срезают под основание.
Соединяются брусья между собой, в местах перевязки с перегородками при помощи связки паз-гребень. В углах соединение, для большей прочности, применяют трёх видов:
- с использованием коренного шипа,
 - соединение в пол бруса,
 - впритык.
 
Важно! Вырезать узлы соединения легче по заранее изготовленному шаблону. Резы делаются с учётом припуска для утеплителя. Примыкания получатся ровными и надёжными узлами
Примыкания получатся ровными и надёжными узлами.
Между венцами и в соединениях так же укладывается джут. На втором венце врезают балки для настила пола. Под каждую деталь на расстоянии 1,5 метра выкладывают из керамического кирпича опоры. После монтаж четвёртого венца, производится черновой настил пола из досок толщиной не менее 40 мм.
Как увеличить площадь маленького дома
Дефицит полезной площади в маленьком доме заставляет идти на некоторые хитрости при его планировке. Существует несколько способов использовать пространство более рационально. Наиболее действенный метод, это формирование многофункциональных помещений. Кухня совмещается со столовой, кабинет со спальней или с гостиной, а гостиная с детской.
Резервы для лишних сантиметров в маленьком доме, 4 полезных совета:
Закрытое крыльцо вместо прихожей
- Минимум перегородок;
 
Двери устанавливаются не распашные, для открывания которых нужно радиусное пространство, а раздвижные;
Компактная мебель, по возможности встроенная, с большими зеркалами и стеклянными витражами.
Не нужно стремиться уместить на имеющейся площади помещения разного назначения. Учитывая, что в доме 6 на 6 будет проживать небольшая семья, рационально распланировать его по принципу квартиры-студии, в которой соединяются кухня, столовая, гостиная и прочие комнаты.

 Большое помещение зонируется стеллажами, ширмами, цветом или различной отделкой на стенах.

В случаях, когда необходимо создать изолированное пространство (например, для рабочего кабинета или спальни), для него выделяется небольшая комната в дальнем углу дома.

Видеообзор одноэтажного дома:
Проекты дома из бруса 6 на 6 метров
Одноэтажный дом из бруса 6х6 м
Трудно разместить все необходимые для удобства комнаты на такой маленькой площади. Как видите, 1 комната и санузел – это все, что удалось уместить в этом проекте. Дом, скорее, предназначен для летнего пребывания.
Одноэтажный жилой дом 6х6 м
Пусть комнаты не имеют большой площади, но в такой планировке вполне можно представить жизнь небольшой семьи. Да, дом лишен санузла. Но это вполне может быть вынесено на территорию пристроя. Незначительные затраты на строительство каркасного пристроя к дому позволяет решить многие проблемы комфорта.
Дом из бруса 6х6 с мансардой
При размере дома 6х6 метров можно обойтись небольшими затратами на обустройство мансардного этажа. Предлагаем вам интересный проект с разноскатной крышей. Мансардный этаж выполнен за счет высокого конька.
Дома из бруса 6х6 с ломаной мансардной кровлей
Весьма распространенный вариант обустройства мансарды за счет ломаной кровли. Позволяет получить больше жилой площади по сравнению с мансардой с высоким коньком. В доме гармонично размещены все комнаты, необходимые для комфортного проживания.
Стеновые материалы
Стеновой материал, из которого будут возведены наружные и несущие стены дома, необходимо выбрать еще до начала проектирования, так как набор характеристик выбранного материала обязательно учитываются при разработке проекта.
Пеноблок и газоблок
Пористые блочно-бетонные материалы активно используются в последние годы при возведении малоэтажных жилых строений. В число их достоинств входят такие характеристики:
- малый вес;
 - простота в применении;
 - высокие показатели теплосбережения;
 - экологичность;
 - паропроницаемость;
 - невысокая стоимость;
 - идеальная геометрия блоков.
 
Есть у пористых бетонов и свои недостатки. Прежде всего, нужно помнить о том, что они впитывают влагу, поэтому нуждаются в надежной термоизоляционной отделке. Кроме того, газоблоки и пеноблоки не достаточно прочные, и при их использовании необходимо качественное армирование стен и перекрытий.
Дом из газоблоков 6 на 9 с цоколем и мансардой в разрезеИсточник mos-logist.ru
Кирпич и керамоблоки
Строительная керамика отлично зарекомендовала себя многовековым использованием. Классический кирпич прекрасно конкурирует с современными усовершенствованными материалами. При этом и сам кирпич тоже имеет усовершенствованный аналог в виде поризованных керамических блоков.
Из традиционного кирпича строят сегодня сторонники проверенных технологий. Действительно, из кирпича получаются надежные и долговечные здания. Но кирпичные дома отличаются большим весом, поэтому под них нужно сооружать максимально крепкие дорогостоящие фундаменты.
Поризованные блоки легче кирпича. Они имеют внутри пустоты и у них пористая структура. За счет этого они гораздо лучше, чем кирпич, сохраняют тепло, но при этом их прочность несколько снижается.
Дом 6 на 9 из кирпичаИсточник tarifi.info
Монолитный дом
Строительство монолитного дома осуществляется путем заливки жидкой цементной смеси в опалубку с арматурным каркасом. Плюсы монолитных строений:
- сейсмоустойчивость;
 - водонепроницаемость;
 - прочность;
 - равномерная нагрузка на фундамент;
 - минимальная усадка.
 
Есть у такого типа строительства и свои недостатки:
- трудоемкость;
 - необходимость использования специального оборудования;
 - высокая теплопроводность;
 - плохая звукоизоляция;
 - в бетонных стенах сложно прокладывать дополнительные коммуникации.
 
Монолитный дом размерами 6 на 9 метровИсточник uk.aviarydecor.com
Дерево
Древесные материалы идеальны для строительства небольших коттеджей. Деревянный дом 6 на 9 с мансардой отлично впишется в любое природное или архитектурное окружение. Современные варианты строительного бревна и бруса позволяют быстро сооружать красивые, долговечные и практичные загородные дома.
Деревянный коттедж является теплым экологичным жильем с благоприятным микроклиматом. Единственным его недостатком можно считать необходимость следить за состоянием деревянных элементов, периодически обрабатывать их защитными составами, если потребуется – осуществлять реставрацию поврежденных частей здания. Но если дом небольшой, то уход за ним не будет слишком обременяющим.
Красивый дачный дом из дерева с высокими техническими характеристиками может быть построен из оцилиндрованного бревна или профилированного бруса. Коттедж из бревна выглядит как настоящий традиционный сруб. Но этот материал дает усадку, а она, в свою очередь приводит к образованию трещин. Чем больше трещин, тем ниже теплосберегающие способности стен.
Деревянный дом 6 на 9Источник design-v-lipetske.ru
Брус тоже выглядит в готовом строении вполне привлекательно. При этом он не дает усадки, что повышает эксплуатационные свойства здания. Но стоит это материал дороже.
Каркасная технология
Все чаще загородные дома возводят по каркасной технологии. Это связано с тем, что сама технология, и применяемые в ней материалы постепенно оптимизируются. Параллельно растет уровень доверия к данной методике строительства в нашей стране, так как первые каркасные дома, построенные уже не одно десятилетие назад, по сей день успешно эксплуатируются.
Каркасные здания собираются по типу конструктора. Их можно строить в любое время года. Они получаются теплыми, комфортными, эстетичными. Но деревянный каркас требует такого же внимательного ухода, как и конструкции из бруса или бревна. Еще один важный нюанс – нужно очень серьезно подойти к вопросу выбора утеплителя.
Архитектурный проект каркасного дома 6 на 9Источник emupauto.ru
Особенности готовых проектов
Строительные компании предлагают разнообразные проекты срубов жилых домов и бань из бруса и бревна, как оцилиндрованного, так и ручной рубки. Они имеют различный дизайн и планировку площади; по желанию будущего владельца любой проект может быть доработан; также возможно создание проекта «с нуля», по эскизам заказчика. Обращение к профильной компании обладает рядом преимуществ:
- 
Рациональностью проектирования. Внутреннее пространство удобно и имеет оптимальное количество перегородок.
 - 
Высокой скоростью строительства. Сроки поставки и сборки зависят от выбранного материала, комплектации и сложности проекта и в среднем составляют 3-6 недель.
 
Выбор материала для строительства бани
Квадратную баню удобно возводить из многих материалов. Правильная форма сооружения минимизирует количество остатков материала.
Разберем подробнее самые популярные варианты в загородном строительстве.
Дерево (бревно, брус)
Брусовая баня обойдется недорого, а получится красивой и аккуратной. Покупать нужно хорошо высушенный, отшлифованный и обработанный антисептиком материал. Собранный каркас снаружи обшивается брусом. Внутри рекомендуется сделать тепло- и гидроизоляцию стен. Утеплитель нужно выбирать такой, который будет устойчив к воздействию влаги (минеральную вату). Пенополистирол и его виды не подходят.
Отлично смотрятся бани, построенные из бруса и пенобетона или кирпича.
Баня из бревен считается русской классикой. Она не нуждается во внутренней отделке. Интерьер оформляется в деревенском стиле, кантри. Построить такую конструкцию в разы сложнее за счет большого веса бревен.
Кругляк должен быть отшлифован и пропитан влагостойким составом. Доставку производят в кубах, поэтому нужно заранее просчитать, сколько сырья понадобится для работы.
При использовании качественной и хорошо высушенной древесины баня прослужит десятилетия.
Кирпич
Бани из кирпича строят не так часто из-за больших трат времени и денег на материалы. Но в результате она будет служить круглогодично и станет уютным гостевым домиком.
Постройка требует заливки монолитного или ленточного фундамента. Стены изнутри гидроизолируют и утепляют. Снаружи отделка фасада проводится на усмотрение хозяев.
Крыша делается простой односкатной или многоскатной. Процесс кладки трудоемок. Поэтому лучше пригласить в помощь опытного строителя. Нагревать такую баню придется не один час, в отличие от деревянной. Но и тепло в помещении будет держаться дольше.
Блоки (пено-, газо-, керамзитобетонные)
Пеноблок, газоблок ‒ реальная бюджетная альтернатива кирпичу. Материал легок по весу, имеет большее размеры. Это существенно упрощает и ускоряет процесс кладки. Баня из газобетона быстро нагревается, но и быстро остывает.
Каркасная технология
Хороший тип бани ‒ каркасный. Собирается быстро. Не несет большой нагрузки на фундамент. Бывает как в один, так и два этажа. Готовые бесплатные эскизы банных построек 6 на 6 можно увидеть в интернете.
Строим своими руками
Строительство дома силами подрядчика не потребует от вас опыта строительных работ. Вам нужно лишь выбрать проект, оплатить работы строительной фирмы и используемых материалов. Даже для контроля подрядчика и приемки готового объекта можно нанять профессионалов.
Все гораздо сложнее и серьезнее при строительстве дома своими руками. В одну статью невозможно уложить все советы и рекомендации по возведению каркасных сооружений, но мы можем дать вам направление для изучения каждого этапа строительства.
Итак, мы уже выбрали проект для дома. Как поступить дальше? Рекомендуем составить чертежи каждой из стен, пола, потолка и стропильной системы. Это значительно упростит расчет необходимых строительных материалов и монтаж элементов каркаса
Важно понимать расположение основных несущих элементов конструкции дома до обустройства фундамента. Расчет необходимых материалов особенно важен, если участок постройки находится далеко от поставщиков материала, а доставка материалов собственным транспортом не предоставляется возможной. Составьте план поставок материалов для своевременного выполнения работ и удобства их хранения
После того как работа с калькулятором и чертежами закончена, найдены поставщики необходимых материалов, составлен план доставки материалов на стройку, можно приступать к монтажу фундамента
Составьте план поставок материалов для своевременного выполнения работ и удобства их хранения. После того как работа с калькулятором и чертежами закончена, найдены поставщики необходимых материалов, составлен план доставки материалов на стройку, можно приступать к монтажу фундамента.
Рекомендуем к прочтению
Важная информация для проектирования дома 6 на 8 из газобетона
Подробнее
Каркасные дома имеют небольшой вес. Для строительства даже двухэтажного каркасного дома 6х6 можно обойтись свайным фундаментом или винтовыми сваями
Поэтому важно иметь чертежи дома, ведь под несущими элементами каркаса с наибольшей нагрузкой должна находиться опора. С правилами обустройства таких фундаментов вы можете ознакомиться в интернете
Возведение стен каркасного дома невозможно до обустройства нижней обвязки и монтажа пола первого этажа.
Ключевые этапы работ
Установка и закрепление на фундаменте обвязочного бруса; Выставление лаг для пола первого этажа (соблюдение уровня и плоскости расположения); Монтаж чернового пола под утепление; Закладка необходимых строительных мембран, утепление; Монтаж финишного напольного покрытия или основания под него (листовые материалы под последующую отделку; Монтаж каркаса из бруса (основные и промежуточные стойки, подготовка оконных и дверных проемов) или установка стеновых панелей в случае строительства каркасно-щитового дома. В случае выбора каркасно-щитовой технологии стеновые панели монтируются «на земле» или закупается готовый домокомплект; Монтаж верхней обвязки и потолочных балок; Работа со стропильной системой и кровельным материалом; Обшивка стен дома и потолка с последующим утеплением может производиться в любом порядке после подведения дома под кровлю
Важно соблюдение технологии работ с выбранным утеплителем; Отделочные работы: установка окон и дверей, работа с финишными отделочными материалами, монтаж инженерных систем и элементов коммуникаций. Каждый из этапов работ требует детального изучения
Старайтесь работать с материалами, которые вам уже знакомы, или которые требуют минимального набора инструментов и навыков. Да, строительство каркасного дома 6 на 6 – весьма сложный процесс при рассмотрении каждого технологического этапа. Но стоит пройти этот путь один раз, а в дальнейшем это уже не будет казаться таким сложным
Каждый из этапов работ требует детального изучения. Старайтесь работать с материалами, которые вам уже знакомы, или которые требуют минимального набора инструментов и навыков. Да, строительство каркасного дома 6 на 6 – весьма сложный процесс при рассмотрении каждого технологического этапа. Но стоит пройти этот путь один раз, а в дальнейшем это уже не будет казаться таким сложным
Важно ответственно подойти даже к самым простым строительным операциям
Как выбрать печь по размерам бани
Одно из ее преимуществ ‒ способность долго удерживать тепло.
Что ещё следует учесть:
- Для самостоятельной кладки нужно выбрать качественный кирпич.
 - Помимо этого печь будет много весить, что требует заливки под нее отдельного фундамента.
 - Для придания декоративного вида в русском стиле печь штукатурят.
 
Или можно установить два водяных бака: один – внизу рядом с печкой, другой – поставить на втором этаже.
В стандартной одноэтажной бане есть несколько способов разместить печь:
- В парной. Можно регулировать уровень нагрева, не выходя из парилки.
 - С выносом топки в другую комнату. Позволяет одновременно прогревать сразу два помещения. Чаще всего топку выводят в комнату отдыха, чтобы наблюдать за огнем.
 - В предбаннике. Рядом ставится большая поленница.
 
Если же навыки работы с кирпичом отсутствуют или хозяева хотят сократить затраты, то для обогрева бани подойдет и металлическая печь. Просто нужно подобрать модель соответствующей мощности, чтобы равномерно нагревались все помещения.
Чтобы печь дольше сохраняла тепло, мастера рекомендуют обкладывать ее кирпичом.
Русская баня 6*6 станет отличным вариантом гостевого домика, уютным уголком для проведения торжеств и отдыха после напряженной рабочей недели, а большой выбор готовых проектов позволит реализовать идеи владельцев с разным бюджетом и предпочтениями.


















