Способы перепланировки: допустимые и запрещенные
| Допустимые | Запрещенные | 
|---|---|
| Возможен снос перегородки между туалетом и ванной и совмещение данных комнат. Также допустимо расширить санузел за счет прихожей. | Во время перепланировки нельзя затрагивать несущие стены. | 
| Уместно расширить или удлинить жилую комнату, соединяя ее с частью коридорного пространства. | Запрещено увеличение санузла за счет жилой комнаты. | 
| Также нельзя расширить кухонное пространство за счет туалета или ванной. | |
| Проделать дополнительные дверные проемы во внутренних перегородках квартиры, которые не являются несущими. | Совместить жилое помещение с кухней без дверей, на которой установлена газовая плита. | 
| Демонтировать антресоли, ниши, кладовки и другие подсобки для расширения пространства. | Небезопасным является присоединение теплого пола к общему отоплению и трубам с горячей водой, а также перенос траектории или перекрытие вентиляции. | 
| Перепланировка недопустима для хрущевок, которые стоят в очереди под снос. | 
Как расставить мебель
При расстановке мебели в хрущевке следует учитывать, что необходимо заполнять вещами такие места:
- над диванами на стенах хорошо будут смотреться полки и стеллажи;
- в углах тоже не мешало бы установить какую-то мебель, шкафы;
- в коридорах не плохо было бы повесить полки: это тоже позволит сэкономить место и увеличить свободное пространство (хотя бы для того, чтобы разместить предметы более крупных размеров).
Если вы планируете купить новую мебель, стоит учесть, что без ремонта новый гарнитур или другая мебель не будет смотреться, и это только подчеркнет все изъяны интерьера однокомнатной квартиры. Стены и полы будут выглядеть еще более обшарпанными и утратившими свежесть. Восторг моментально улетучится, как только вы все расставите всё на свои места.
Совет! При обновлении мебели стоит произвести в квартире хотя бы минимальный косметический ремонт, что даст возможность выглядеть гармонично современной мебели в обновленном интерьере.
Квартира студия
Преобразование однокомнатной хрущевки в студию сейчас становится достаточно распространенным вариантом перепланировки. В основном этот вариант используется не для проживания, а для организации определенного места, фотостудии.
Квартира студия – это просторное помещение для рабочего процесса и несколько комнат бытового типа, а именно туалет и примерочная комната. Обычно при перепланировке под такой тип помещения убирается перегородка между гостиной и кухней. Создается большое помещение для работы фотографа.
Эти квартиры популярны и среди молодежи. Многие молодые семьи предпочитают начинать жить именно в таких квартирах, поскольку стоимость их достаточно невысока, а дизайн очень привлекателен. Но проживание там может надоесть, многие дизайнеры советуют использовать различные способы зонирования. К примеру, применение различных ширм, штор, отделение зон при помощи мебели, шкафов.
Перепланировка однокомнатной хрущевки — это достаточно трудоемкий процесс, обеспечивающий увеличение площади. Применение различных способов зонирования поможет не только разнообразить дизайн, но и разделить комнату на отдельные зоны. А если посмотреть различные фото, то все можно сделать стильно и красиво.
Дизайн интерьера комнат
Рассмотрим дизайн двухкомнатной хрущевки в деталях, ведь каждое отдельное помещение имеет свои особенности.
Гостиная
Чем больше в квартире проживающих, тем сильнее загружена центральная комната в хрущевке – зал. Чтобы всем членам семьи было не только удобно собираться здесь по вечерам, но и принимать гостей, место для сна должно быть скрыто. Хороший выход – раскладной диван-кровать. В сложенном виде он не занимает много пространства. Напротив него можно повесить телевизор или установить декоративный камин. Иногда проходная комната может совмещать роль столовой, гостиной и спальни.
Кухня
В тесной кухне 6 кв. метров непросто разместить современное оборудование и обеденную зону. Без перепланировки на такой небольшой площади с трудом умещается четырехкомфорочная плита, рабочая поверхность и холодильник.
Чтобы сэкономить драгоценные сантиметры, рекомендуется использовать встроенную технику (она занимает меньше места), двухкомфорочные плиты, мебель-трансформер. Если перенести коммуникации к окну, раковину можно встроить в подоконник. Столовую проще оборудовать в комнате, либо в освободившемся после сноса перегородки проходе между кухней и комнатой.
На фото кухня в двухкомнатной хрущевке, оклеенная фотообоями с перспективой, которые делают помещение визуально глубже.
Спальня
Место для сна и отдыха чаще всего располагается в дальней комнате. В типовых сериях это узкое пространство, напоминающее вагончик, в котором найдется место для двуспальной кровати, шкафа и столика. Оформляется в нейтральных тонах, чтобы не перегружать обстановку. Для расширения пространства используются зеркала, а для придания интерьеру легкости – мебель на ножках.
Отличный вариант – использование зеркальных шкафчиков по бокам от кровати, которая как бы углубляется в нишу. Для хранения вещей используется полка в изголовье.
Ванная и туалет
В двухкомнатных хрущевках распространены как раздельные, так и совмещенные санузлы. Наилучшим способом сохранить свободное место является установка душевой кабины, но не каждый годов отказываться от полноценной ванны.
Стиральную машину можно установить под раковину или вместо неё. Для сохранения воздуха и света в маленькой ванной стоит использовать минимум разноцветных элементов и открытых полок. Для отделки лучше выбирать белую глянцевую плитку, ее применение дает потрясающий эффект: зрительно стираются границы, увеличивается количество света.
На фото белая ванная в минималистичном стиле, ниша которой оформлена зеркалом.
Детская комната
Небольшие габариты двухкомнатной хрущевки для семьи с ребенком – не повод отказываться от интересного и функционального дизайна: нужно всего лишь применить несколько хитростей, которые позволят вместить в детскую всё необходимое. Это и изображения на стене, и угловые столы, и двухъярусные кровати. Нельзя пренебрегать и межпотолочным пространством – там могут разместиться шкафчики с вещами.
Прихожая и коридор
Чтобы использовать прихожую в хрущевке для хранения верхней одежды и обуви, рекомендуется выбирать шкаф до потолка: так сохранится пространство и поместится больше вещей. Некоторые двухкомнатные хрущевки оснащены кладовками, которые можно переоборудовать в гардеробные.
Кабинет или рабочее место
Место для работы за компьютером часто требует уединенности. Кабинет можно обустроить на утепленном балконе, в нише, выделить несколько метров у окна или спрятать за шторами.
История появления «Хрущевок»
Стиль советского домостроения определило на долгие годы постановление «Об устранении излишеств в проектировании». Документ обнародовали в 1955 году, а уже в сентябре 1956 года были разработаны новые планы строительства многоквартирных домов. Цель возведения хрущевок – максимальное удешевление жилья для всех слоев населения. Граждане советского союза свято верили, что к концу 80-х гг., когда наступит коммунизм, каждая семья будет проживать в отдельной квартире.
Первыми появились панельные дома. С массивными плитами начал экспериментировать еще в 1948 году архитектор и изобретатель А.К. Буров. Увидев у французских коллег многоэтажные дома в индустриальном стиле из готовых блоков, советский техник начал подобное строительство на родине.
Результат его сильно огорчил – маленькие однообразные квартирки показались нищими и убогими. Но Хрущев, напротив, был восхищен опытом французов, купил у них технологическую линию изготовления панелей и немедленно приступил к застройке городов компактными пятиэтажками.
Советские хрущевки строили из блоков, панелей, кирпича. Все дома имели ряд общих характеристик – отсутствие лифта и мусоропровода, крошечные кухни (до 4,6 м2) и прихожие. Жилая площадь однокомнатной квартиры – 16 м2. Даже такая малая территория для проживания обязательно имела кладовую.
Как выбрать место для спальни в единственной комнате?
Для того чтобы ответить на этот вопрос, в первую очередь необходимо детально осмотреть имеющееся помещение, так как здесь у нас и кухня и гостиная и еще и спальня нужна. На первый взгляд, казалось бы, без разницы, где установить диван и кровать, но на самом деле, все не так.

Как советуют дизайнеры спальное место должно быть выделено или экранировано. Способов сделать и то, и другое существует большое количество, но остановимся на главных.

Поэтому можно сразу понять по фото дизайнов однокомнатных квартир со спальнями, почему именно там должна быть спальня. Посмотрев на подборку фото, видно, что учитывается полностью вся площадь и объём однокомнатной квартиры.

История появления «Хрущевок»
Стиль советского домостроения определило на долгие годы постановление «Об устранении излишеств в проектировании». Документ обнародовали в 1955 году, а уже в сентябре 1956 года были разработаны новые планы строительства многоквартирных домов. Цель возведения хрущевок – максимальное удешевление жилья для всех слоев населения. Граждане советского союза свято верили, что к концу 80-х гг., когда наступит коммунизм, каждая семья будет проживать в отдельной квартире.
Первыми появились панельные дома. С массивными плитами начал экспериментировать еще в 1948 году архитектор и изобретатель А.К. Буров. Увидев у французских коллег многоэтажные дома в индустриальном стиле из готовых блоков, советский техник начал подобное строительство на родине.
Результат его сильно огорчил – маленькие однообразные квартирки показались нищими и убогими. Но Хрущев, напротив, был восхищен опытом французов, купил у них технологическую линию изготовления панелей и немедленно приступил к застройке городов компактными пятиэтажками.
Советские хрущевки строили из блоков, панелей, кирпича. Все дома имели ряд общих характеристик – отсутствие лифта и мусоропровода, крошечные кухни (до 4,6 м2) и прихожие. Жилая площадь однокомнатной квартиры – 16 м2. Даже такая малая территория для проживания обязательно имела кладовую.
Какие материалы использовать для отделки
Для отделки поверхностей в однокомнатной хрущевке могут быть использованы абсолютно любые материалы, подходящие под выбранный стиль оформления интерьера. При выборе способа оформления нельзя забывать о назначении материала и его основных характеристиках.
Стены будут выглядеть лучше, если сделать их однотонными или с природной фактурой. Удачно подобранный рисунок фотообоев визуально увеличит комнату. Это могут быть геометрические фигуры, бледные пейзажи. Материалы, требующие сложного монтажа и забирающие драгоценные кв. метры, для отделки стен использовать не рекомендуется.
Самое простое и выгодное решение для низких потолков однушки – окрашивание в белый, монтаж подсветки по контуру. Многоуровневые конструкции будут выглядеть громоздко и нелепо в маленькой и единственной комнате. Красиво будет смотреться фотопечать с картинкой облаков.
Полы можно выстелить любым доступным материалом. Тип покрытия надо выбирать в зависимости от назначения помещения. В прихожей, на кухне, в ванной удобно использовать кафель, линолеум. В детской, спальне, гостиной будет уместен теплый паркет, ковролин.
Идеи зонирования на спальню и гостиную
Разместить полноценный набор мебели для двухкомнатной на квадратных метрах однокомнатной возможно. Чтобы отделить пространство для отдыха и сна от жилой комнаты лучше всего использовать напольные раздвижные перегородки. Так на ночь вы сможете закрывать «двери» спальни и наслаждаться покоем.
Совет! Стеклянные ширмы можно дополнить шторами изнутри, чтобы утреннее солнце не будило вас слишком рано.
Совместить две зоны без перегородок также возможно, но этот вариант подходит только если в квартире проживает 1 человек или семья из двоих взрослых.
Важно! Отодвиньте кровать в сторону от окна и обустройте место для сна в темном углу. Ночью освещение вам не понадобится, а днем вы не заметите трудностей, ведь не будете пользоваться спальной комнатой
Выбор текстиля и декора
Без текстильных элементов не обойтись ни в одной квартире. Самый распространенный вариант – шторы. Обрамление окон должно быть максимально легким и невесомым, чтоб пропускать как можно больше света. На полах не может находиться сразу несколько ковровых покрытий, достаточно одного у кровати или в центре. Если надо сделать всю поверхность теплой, лучше застелить все ковролином.
Чтобы обстановка в помещении была приятной и удобной, следует с осторожностью использовать элементы декора. Не стоит загромождать все свободное пространство аксессуарами
Также важен размер элементов декора. Большая картина на узком участке стены сделает недостаток площади еще более заметным. Для размещения книг лучше использовать открытые стеллажи.
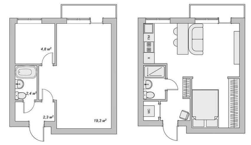
Вариант перепланировки с объединением санузла и изменением его площади
Если в хрущевке разделены уборная и ванная комната, можно снести перегородку между ними и сделать совмещенный санузел. В таком санузле можно установить более крупную сантехнику, которая раньше не помещалось, поставить шкаф для хранения, расположить унитаз, раковину и ванную так, как удобно.
Пример: в однокомнатной квартире в доме серии 1605-АМ объединили санузел и изменили расположение сантехники. Кроме того, в рамках перепланировки оборудовали арку между коридором и комнатой, убрали встроенный шкаф в коридоре.Посмотреть проект целиком (pdf, 10 МБ)
Размеры санузла можно увеличить, чтобы пользоваться им было удобнее, но здесь нужно учитывать два важных нюанса: нельзя затрагивать площадь жилой комнаты и мнимый коридор.
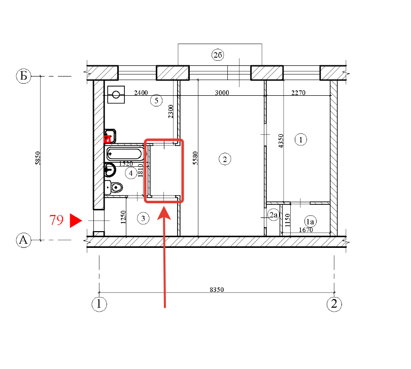
Ограничение по жилой площади. Санузел можно расширить только на площадь коридора. Есть только один случай, когда можно увеличить его за счет площади жилой комнаты или кухни: если квартира находится на первом этаже. Подробные правила можно увидеть на картинке ниже.
Мнимый коридор. В хрущевках часто встречается мнимый коридор между коридором и кухней, в том числе и в однокомнатных квартирах. По документам это зона вовсе не коридор и не прихожая, хотя выглядит похоже, а жилая комната. Поэтому при такой планировке расширить санузел не получится. На иллюстрации мнимый коридор выделен красным.

Перепланировка однокомнатной квартиры в двухкомнатную

Если вам хочется переделать вашу однокомнатную квартиру в двухкомнатную, то у нас есть для вас несколько очень удобных и практичных вариантов. Правда, помните, что перепланировка однокомнатной квартиры как таковая стоит от 600 тысяч рублей (проект, согласование, работы по монтажу и демонтажу, утеплению лоджии) плюс сам ремонт без мебели (500-1000 тысяч рублей).

Но ведь вы можете взять эти 1-1,5 млн рублей и добавить к стоимости квартиры, чтобы просто совершить сделку обмена или купли-продажи.
Перепланировка однушки в двушку с отдельной кухней

Самый популярный вариант перепланировки однушки в двушку подразумевает расположение спальни у окна в жилой комнате и гостиной – в той же комнате, только в зоне без окна. Между ними ставится стеллаж, стеклянная или гипсокартонная перегородка. Таким образом вы получаете гостиную без окна, но отдельную спальню. При этом в кухне может быть оставлен диванчик.

То же самое можно сделать с квартирой с нишей, если оставить диван у окна, а спальное место – в нише. Эту планировку нельзя назвать двухкомнатной, но все-таки она более удобна, чем традиционные варианты.

Также вы можете поставить зону с диваном у окна, а спальню оставить без окна, но поставить витражную или гипсокартонную перегородку между этими пространствами. Во всех этих вариантах кухня остается «целой и невредимой», с той же самой планировкой. Правда, лучше присоединить лоджию к комнате или кухне.
Перепланировка из однокомнатной в двухкомнатную с отдельной спальней без окна

Если вам точно нужна самая настоящая отдельная спальня, то есть еще один вариант перепланировки однушки в двушку. Так как кухню нельзя располагать в гостиной, а спальню нельзя располагать в кухне, вариантов остается не так уж много.
Здесь вы разделяете жилую комнату на гостиную (у окна) и спальню (в нише), но объединяете коридор, кухню и ту зону гостиной у окна, чтобы сделать из 42-метровой квартиры двухкомнатную. Перегородка между спальней и гостиной может быть стеклянной, деревянной, гипсокартонной, тканевой.

Посмотрите, как выглядит такая перепланировка с тканевой перегородкой на фотографии выше. Вы получаете отдельную спальню, стильную и красивую, которая при этом может быть легко спрятана от посторонних глаз.
Перепланировка из однушки в двушку с кухней без окна

Данная перепланировка однушки в двушку подходит лишь для гостиной, в которой было два окна. Одно окно отдается спальне, другой – непосредственно гостиной, а кухня остается на своем прежнем месте, но присоединяется к гостиной. Она может быть как с окном, так и без, как было в вашей изначальной планировке. При этом помните, что можно установить кухню в коридоре или прихожей. Если вы живете на последнем этаже, то спальню можно разместить в кухне.
Вот так может выглядеть ваша квартира, если в коридоре вы поставите кухню, присоедините к ней гостиную, при этом в кухне сделаете спальню (напоминаем еще раз – только на верхнем этаже дома).
Если же при вашей гостиной был длинный коридор, то кухня в нем может разместиться вот так:

На планировке ниже перепланировка произведена интересным образом. Кухня разделена на кухню и спальню (последний этаж дома!), спальня получила присоединенную лоджию, кухня – выход и присоединение к коридору. Гостиная (жилая комната) осталась на прежнем месте, так же, как и ванная.
Еще один вариант кухни-гостиной, который выглядит очень современно и стильно. Такую перепланировку можно сделать на первом этаже дома, если под вашей жилой комнатой не находится жилое помещение.
Перепланировка однушки с нишей

Данная перепланировка законодательно возможна, только если вы живете на первом этаже, и под вашей жилой комнатой нет жилых помещений. Тогда в своей нише вы можете расположить кухню, а спальню перенести в вашу кухню. Правда, определить его придется как «кабинет», а не «жилую комнату» (что отразится на жилой площади квартиры в техпаспорте), так как спальню под чьей-то кухней официально сделать нельзя.

Отличный вариант перепланировки однушки с нишей можно увидеть ниже. Ниша делится на гардеробную и спальню. Гардероб примыкает к коридору, а спальня – к гостиной. Кухня объединяется с гостиной, при этом кладовая остается на месте.

Если вы объединяете кухню, комнату с нишей и коридор, то вы можете продублировать объемы ниши с помощью декоративных перегородок. Все это будет смотреться очень стильно и современно.
Переделка 4 х комнатной хрущевки
При увеличении количества комнат в квартирах этой планировки, недостатки только усугубляются: маленькие санузел и кухня больше не становится, комнаты часто — проходные. Один из самых неудачных вариантов на фото ниже. Это то, что было «ДО» того.
Перепланировка 4 х комнатной хрущевки: фото «до»
В этой квартире относительно большая по площади прихожая, но она малофункциональна. Единственный угол с приличными стенками занят кладовкой. Все остальные стены использовать проблематично: в прихожую выходит 7 дверей.
Перепланировка 4 х комнатной хрущевки: фото «после»
В предложенном варианте комнаты имеют более правильную форму — ближе к квадрату, что проще использовать. Осталось две обособленных спальни, а две комнаты превращены в столовую и гостиную. Из прихожей вход в выгороженную гардеробную комнату.
Санузел остался раздельным, площадь ванной увеличена за счет спрямления стены. Часть, которая ранее относилась к коридору также требует усиления гидроизоляции.
2-х комнатная квартира
При переделке 2-х комнатной хрущевки, интересных вариантов становится гораздо больше. Квартиры такого типа были тоже довольно маленькими, поэтому, перемещение перегородок позволяет решить немало проблем. К примеру, разделение дополнительной перегородкой смежных комнат, позволяет превратить двухкомнатную в трехкомнатную. Это особо актуально для семей с разнополыми детьми. Но многие предпочитают наоборот сделать жилье более просторным, объединив комнаты.
Двухкомнатную хрущевку в панельном доме многие владельцы превращают даже в студию. Для этого объединяют гостиную и кухню. В этом случае основной задачей строителей становится смещение входных дверей. За счет этого можно получить большую прихожую, которая в дальнейшем может послужить и гардеробной. При этом большую комнату можно разделить на две зоны: спальню и рабочую. Если боитесь, что в спальне будет мало света, то перегородки поднимаем всего на полтора метра от пола.
Выбор текстиля и декора
Без текстильных элементов не обойтись ни в одной квартире. Самый распространенный вариант – шторы. Обрамление окон должно быть максимально легким и невесомым, чтоб пропускать как можно больше света. На полах не может находиться сразу несколько ковровых покрытий, достаточно одного у кровати или в центре. Если надо сделать всю поверхность теплой, лучше застелить все ковролином.
Чтобы обстановка в помещении была приятной и удобной, следует с осторожностью использовать элементы декора. Не стоит загромождать все свободное пространство аксессуарами
Также важен размер элементов декора. Большая картина на узком участке стены сделает недостаток площади еще более заметным. Для размещения книг лучше использовать открытые стеллажи.
Какие материалы использовать для отделки
Для отделки поверхностей в однокомнатной хрущевке могут быть использованы абсолютно любые материалы, подходящие под выбранный стиль оформления интерьера. При выборе способа оформления нельзя забывать о назначении материала и его основных характеристиках.
Стены будут выглядеть лучше, если сделать их однотонными или с природной фактурой. Удачно подобранный рисунок фотообоев визуально увеличит комнату. Это могут быть геометрические фигуры, бледные пейзажи. Материалы, требующие сложного монтажа и забирающие драгоценные кв. метры, для отделки стен использовать не рекомендуется.
Самое простое и выгодное решение для низких потолков однушки – окрашивание в белый, монтаж подсветки по контуру. Многоуровневые конструкции будут выглядеть громоздко и нелепо в маленькой и единственной комнате. Красиво будет смотреться фотопечать с картинкой облаков.
Полы можно выстелить любым доступным материалом. Тип покрытия надо выбирать в зависимости от назначения помещения. В прихожей, на кухне, в ванной удобно использовать кафель, линолеум. В детской, спальне, гостиной будет уместен теплый паркет, ковролин.
Разделение кухни-гостиной на функциональные зоны
Большое пространство, полученное в результате перепланировки, нуждается в грамотном зонировании.
Существуют различные приёмы визуального разделения кухни-гостиной.
- Подиум на кухне. Пространство под ним используют, как дополнительное место для хранения.
- Разные отделочные материалы для оформления стен, пола в жилой и кухонной зоне.
- Установка точечных светильников по линии разграничения.
- Комнатные растения, образующие импровизированную перегородку.
- Предметы мебели: диван, барная стойка, стеллаж, комод и др.
- Лёгкие перегородки мобильного или стационарного типа, занавеси.
- Арочные проёмы.
- Разноуровневые потолки.
Перепланировка однокомнатной квартиры — правила и советы
Никаких работ по перепланировке осуществляться не должно без разрешения соответствующих организаций. Следует сказать, что придется посетить несколько организаций и собрать некоторое количество разрешающей документации. Процесс трудоемкий, но при получении разрешения все труды окупятся после завершения всех работ, более удобной планировкой.
Но не всегда возможно осуществить перепланировку, поскольку каждая квартира — это ячейка, часть конструкции целого многоэтажного дома, необходимо убедиться в том, что стена которую вы собираетесь демонтировать, не имеет отношения к цельности дома — проще говоря она не должна быть опорой для верхних этажей или крыши.
Перепланировка однокомнатной квартиры фото
Затевая такие грандиозные работы, помните о том, что они потребуют значительного вашего времени, а так же денег. Одним отпуском скорее не обойтись, поэтому лучше для таких работ найти опытную бригаду, а можно обратиться в специализированную фирму, которая займется и получением разрешения и всеми ремонтными работами. Правда за все услуги придется выложить дополнительные денежные знаки, зато вы сами будете свободны.
Перед обращением в инстанции за получением разрешения, конечно же вам необходимо понимать, что вы собираетесь демонтировать и какую планировку вы собираетесь получить в результате проведенных работ. Для этого учитывайте собственные потребности и потребности семьи и конечно же количество членов семьи, их возраст, пол и др. Стоит отметить, что если семья из 3-х человек в однокомнатной квартире еще может как то ужиться, но если человек больше лучше все же направить все усилия не на перепланировку, а на увеличению квадратных метров!
Дизайн проект перепланировки однокомнатной квартиры фото
Нужно ли согласование
Переоформление квартиры в студию выполняется лишь по проекту. В старом доме понадобится технологическое заключение о возможности перепланировки. При переносе сантехнических помещений и кухни нужны акты на проведение скрытых работ и сопровождение авторского надзора.
Если требуется, наоборот, превратить студию в уютную «однушку» либо «двушку», также создают и согласовывают проект, поскольку предполагается изменение конфигурации помещения, его разделение на стационарные зоны.
После создания проекта нужно обратиться в Жилищную инспекцию либо МФЦ для получения согласования. В течение 45 дней уполномоченные органы рассматривают заявление и выносят решение. Если не возникнет повода для отказа, выдается разрешение.
По завершению ремонтных работ комиссия составляет акт, позволяющий внести изменения в технический паспорт жилья. Затем требуется зарегистрировать право собственности на обновленную недвижимость.
При перепланировке категорически запрещено:
- обустройство дверей в туалет и ванну из комнаты либо кухни;
- снос стен между газифицированной кухней и комнатой без установки раздвижных перегородочных элементов либо проемов с плотно закрывающимися дверьми;
- разрушение несущих стенок;
- перенос вентканалов;
- демонтаж подоконника без установки на его место стеклянных раздвижных фальш-стенок или однодверного стеклопакета в пол.
Нельзя переносить кухонную и санитарную зону без учета требований законодательства РФ и Правительства Москвы (либо региональных органов власти).
Заключение
Хрущевки давно уже себя изжили не только с технической точки зрения, но и с моральной. Кроме этого, современная планировка учитывает недостатки прошлого и не допускает подобных просчетов. Те, кто до сих пор живет в хрущевке, ежеминутно и ежесекундно думают, как быстрее осуществить ремонт, с целью избавления от этих крошечных кухонь, туалетов и ванн, а также проходных комнат, где не оптимально используется полезная площадь маленьких комнат.
При этом, следует учитывать, что существует еще одна проблема, не менее серьезная – это организация проекта перепланировки и его утверждение. К великому сожалению, бюрократы не хотят идти навстречу хозяевам хрущевок. Подобное решение получить весьма сложно и хлопотно, а то и совсем дорого. В связи с этим многие владельцы квартир улучшают свою жизнь самостоятельно и переделывают свои квартиры втихую. При определенных условиях, когда придется продавать квартиру, придется заплатить и штраф за самопроизвольную перепланировку. Если все сделано без нарушений технологии, то паспорт на квартиру переделают, естественно за отдельную плату.
Но здесь кроется и другая проблема, связанная с тем, что часть владельцев квартир, при проведении перепланировки все же нарушают требования и нормы, что приводит иногда к плохим последствиям.
Исходя из этого, можно сделать заключение, что любые работы желательно согласовать с соответствующими организациями и получить на это разрешение, иначе можно иметь дело с законом, что повлечет за собой административную или уголовную ответственность.













