Концепция дома соответствующая европейским параметрам
Все мы стремимся к европейскому уровню жизни. И нам действительно есть что позаимствовать, ведь их технологии более совершенные и продуманные. Действительно грамотно спланированный и возведенный дом должен соответствовать четырем основным критериям:
- Надёжность. Это значит, что дом должен возводиться из таких материалов, которые не будут требовать регулярного и специфического ухода, не будут давать усадку или терять свои качества под действием факторов окружающей среды. Поэтому в европейских странах используется бетон и керамический кирпич или керамические блоки. Они долговечны, плюс у вас не возникнет трудностей при необходимости перепродажи жилья. Ведь благодаря долговечности таких материалов вопрос не ликвидности вас не коснется;
- Комфорт. Этот пункт подразумевает наличие здорового микроклимата в помещении. Соответственно, в доме должна быть правильная система вентиляции, очистительные фильтры в местах забора воздуха, что позволит родным дышать чистым воздухом. Температура должна быть комфортной, а управление ее быстрое и простое. И самое главное – в своем доме вас должна окружать тишина и покой, а не звук проезжающих рядом машин или крики соседских детей;
- Инновационные технологии. Которые должны использовать для теплоизоляции не только стен, но и фундамента и кровли, минимизации теплопотерь благодаря, например, системе рекуперации, независимой системы вентиляции и т.д.;
- Низкие затраты на эксплуатацию. То есть после введения в эксплуатацию, дом должен требовать минимальных затрат на свое содержание, текущий ремонт и отопление. Чтобы добиться таких результатов, необходимо использовать строительные и отделочные материалы соответствующего качества и энергоэффективные системы остекления.
Перейдем, непосредственно к рассмотрению готовых проектов.
В каких случаях уместны?
Дома в 50 квадратов для постоянного или временного проживания возводят чаще всего люди, желающие отказаться от чрезмерных трат. При качественном утеплении даже в зимние холода в таком жилье будет сохраняться вполне комфортная температура. Уместность такого малогабаритного жилья на участке определяется не только наличием свободной площади.


Выбор проекта в пользу дома в 50 м2 актуален для нескольких категорий граждан.
- Пенсионеров, живущих за городом на сезонной основе.
- Одиночек, желающих сменить городскую суету на уединенную атмосферу пригорода.
- Молодых семей. Люди, не обремененные заботой о детях, вполне могут рассматривать дом в 50 м2 как свое первое совместное жилье.
- Ценителей минимализма. Если хочется получить проект, как в Швейцарии или Франции, в Англии или США, стоит рассматривать именно мини-дома. Они позволяют реализовывать самые современные дизайнерские концепции наиболее полно.

Мини-дома востребованы не только в индивидуальном строительстве. Их активно используют при создании баз отдыха, устанавливая на территории для размещения постояльцев. Небольшая площадь в этом случае оказывается не минусом, а преимуществом, ведь на участке можно разместить сразу несколько объектов.


Нюансы проектирования при наличии мансарды
В отличие от двухэтажного дома, одноэтажная постройка с мансардой не потребует основательного фундамента
В архитектурном плане дома с мансардой отличаются от двухэтажных лишь тем, что верхний этаж имеет усечённую с боков форму. В техническом отношении эти постройки легче и не требуют столь основательного фундамента, как здания с полноценным вторым этажом.
Большинство проектов предполагают наличие общего фундамента для гаража и жилого дома. Согласно нормам строительства, возведение этих объектов должно выполняться одновременно. Дома с мансардой и гаражом выгоднее по нескольким причинам:
- обогрев жилых помещений и бокса для авто осуществляется от одного источника тепла;
- нежилой мансардный сокращает теплопотери через верхнее перекрытие и кровлю.
Проект дома с мансардой и гаражом под одной крышей
Наиболее удачными проектами домов с мансардой и гаражом считают те, в которых отсутствуют несущие стены. Это даёт широкий выбор вариантов перепланировок любого этажа: и первого, и мансардного. В гараже предусмотрено помещение для размещения мастерской или котельной. Выход из бокса в дом реализован через тамбур.
Другие варианты
Особенной популярностью пользуются дома, где предусмотрена просторная терраса или веранда. Это очень интересное и нужное дополнение, особенно активно эти помещения используются в теплое время года. При должном обустройстве здесь можно и отдыхать, и спать, и даже готовить пищу. При необходимости и гостей можно временно разместить на террасе, но для этого она должна быть оснащена закрывающимися дверями и окнами. Еще лучше, когда дом включает в себя и террасу, и мансарду. Он и внешне выглядит привлекательно, и полезное пространство увеличивается.
Рассмотрим примеры интересных строений с террасами.
Прекрасная терраса с фонариками располагает к вечернему отдыху. Здесь можно разместить столик и диванчики. Окружающий пейзаж настраивает на романтический лад.
Особенно привлекательно смотрятся те одноэтажные дома, где тщательное внимание уделено оформлению придомовой территории. Их стоит рассмотреть отдельно. Очень интересный вариант, где все растения высажены с соблюдением строгих геометрических форм, а пристроенная к дому большая терраса позволяет любоваться растениями и отдыхать на свежем воздухе.
Очень интересный вариант, где все растения высажены с соблюдением строгих геометрических форм, а пристроенная к дому большая терраса позволяет любоваться растениями и отдыхать на свежем воздухе.
Особенности проектирования
Существует всего два пути составить проект дома с гаражом, чертежи которого вам понравятся: сделать все самостоятельно или обратиться в соответствующую строительную организацию за разработкой индивидуального проекта. Во втором случае вы получите:
- Полное техническое описание объекта;
- Полные чертежи с описаниями;
- План строения со всеми подробностями.
Эти же пункты включает в себя и типовые проекты домов одноэтажных с гаражом.
Типовой проект дома с гаражом
Если вы выберете типовой проект, то это может быть как простой проект 6 х 10 м, так и очень сложный и красивый проект, но нужно помнить, что типовые разработки не всегда подойдут именно для вашего участка и ваших финансовых возможностей. Готовые решения лучше использовать на участках с ровным рельефом и без особенностей ландшафта и грунта. Иначе проект придется корректировать.
При самостоятельной разработке проекта, если вы не архитектор, проще всего воспользоваться компьютерной программой, например, ArchiCAD. Такой смелый подход позволит вам претворить в жизнь все ваши фантазии, вплоть до мельчайших деталей, а проект получится оригинальным и уникальным.
Разработка проекта в программе ArchiCAD
Главные правила при создании проекта одноэтажного дома с гаражом:
- Правильная планировка инженерных коммуникаций;
- Максимальная функциональность гаражного помещения;
- Рационализированное общее свободное пространство;
- Правильная планировка, предусматривающая разделение и максимальное удаление жилой и хозяйственной части;
- Разбивка и благоустройство приусадебного участка и автомобильного подъезда.
Проект дома и гаража на разных уровнях
Даже множество архитектурных и дизайнерских вариантов проектов можно условно поделить на два класса:
- Гараж-пристройка к жилью;
- Подземный гараж.
При строительстве подземного гаража значительно возрастают затраты на землеройные работы плюс вывоз грунта, углубление, усиление и гидроизоляция фундамента. Также понадобится правильно оборудовать въезд в гараж с углом наклона 12°. Именно отдельный въезд намного уменьшит площадь вашего участка и потребует дополнительной защиты от снега, дождя, наледи, и т.д.
Архитектурные решения
Простейший проект имеет прямоугольную форму с примыкающим гаражом к боковой стене жилого строения (см. рисунок ниже). Преимущества такого варианта – максимальное использование пространства.
Прямоугольный проект
План и место дома на участке
- Такие проекты предполагают размещение здания на возвышенности участка, если она существует, для максимального и более продолжительного естественного освещения. Если ваш участок расположен в низине или имеет ровную поверхность, то дом строится на северо-востоке, чтобы дом освещался солнцем максимально долго;
- Фасад дома должен выходить на юг, при этом проект дома с гаражом можно дополнить террасой;
- Чем ближе въезд в гараж к воротам, тем лучше;
- Перед въездом необходимо оборудовать парковку для кратковременной стоянки или для других автомобилей.
Расположение дома с гаражом на участке
Внутренняя и гаража:
- Гараж с подсобными помещениями должен находиться со стороны севера;
- Гостиная в доме должна располагаться с южной стороны;
- Восток идеально подойдет для спален, детских и гостевых комнат.
- На западе – столовая, общая или игровая комната.
Следите за правильным расчетом площади гаража, чтобы открывающиеся двери автомобиля не задевали стены и позволяли свободно выйти из машины.
Для максимально комфортного проживания в таком доме и для оптимально удобной эксплуатации гаража рекомендуется обустроить небольшой тамбур между пристройкой и жилыми помещениями. Тамбурная пристройка сократит потери тепла в неотапливаемом гараже, и станет препятствием для проникновения посторонних шумов в дом из гаража. Также гараж – очень удобное место для расположения котла и другого отопительного оборудования, подальше от перехода между помещениями.
Еще один проект
Стиль дизайна дома в один этаж с пристройкой-гаражом можно выбирать любого направления – это зависит только от хозяина. При этом нужно учитывать архитектуру дома, форму кровли, экстерьер приусадебного участка. Если у вас большой участок, то дизайн рекомендуется в классическом или старинном стиле, на маленьком участке лучше будет выглядеть дом в минималистическом стиле или хай-тек.
Проектирование совмещённой с сараем беседки
Если дачный участок не располагает территорией для строительства дома, то собственникам рекомендуется обустроить беседку, объединённую с хозяйственным помещением. Помещение, выполняемое функцию склада, возводят отдельно от других построек. Для рационального распределения пространства можно построить:
- бытовку с санузлом (душем, туалетом);
- сарай, летнюю кухню и навес под автомобиль;
- хозяйственный блок с комнатой отдыха;
- склад под инструменты, объединённый с беседкой, помещением с печью.
Если площади на участке мало, то сарай можно совместить с беседкой
Вариантов много, их выбор зависит от имеющихся условий и желаний собственника. Большим спросом пользуется бытовка с верандой или беседкой. Эти помещения могут крыться одной кровельной конструкцией. Все строения на участке должны быть выполнены в едином стиле, обладать внешней привлекательностью и функциональностью.
Под крышей беседки можно легко скрыться от дождя
Материалы для строительства сарая
Простая конструкция хозяйственного домика позволяет сделать его своими руками при наличии элементарных навыков монтажных работ. Для строительства можно использовать:
- Деревянные доски, брусья. Беседка с хозблоком из такого материала прекрасно украсит дачный участок с любым ландшафтом. Природное сырьё дарит тепло и уют в любое время года, а благодаря небольшому весу его легко монтировать без капитального фундамента.
- Металлические листы. Работа выполняется путём приваривания всех частей, поэтому понадобится опытный сварщик со специальным инструментом. При небольшом весе такие подсобки легко могут транспортироваться в любое место и не нуждаются в фундаменте. Изящно смотрятся летние веранды с кованными металлическими элементами.
- Камень или кирпич. Бытовка из таких материалов — капитальное сооружение, самое тяжёлое по весу и сложное по монтажу. Возведением таких помещений лучше заниматься, если уже есть готовый дом и другие дополнительные строения, чтобы все они соответствовали общему дизайну.
Преимущества объединения бытовки с беседкой
Плюсами обустройства хозяйственных помещений с беседкой под одной крышей выступают:
- существенная экономия площади;
- удобство использования для владельцев дачи;
- эстетичность: грамотно спроектированный и оформленный санузел совместно с хозяйственным блоком не выделяется из общего дизайна участка;
- практичность и функциональность: хозяйственный блок подходит для хранения продуктовых запасов, которые можно будет быстро достать, и угостить домашних, собравшихся за столом в беседке.
Если беседка оборудуется мангальной зоной, то, как правило, к этому помещению пристраивается дровяник
Важно соблюдать некоторые требования:
- Место должно быть укрыто от лучей палящего солнца, располагаться на значительном расстоянии от выгребной ямы и туалета без канализации.
- От конструкции не должна падать тень на посадки.
- Хозяйственный блок рекомендуется возводить, используя северную, северо-западную или северо-восточную стену беседки. Так она будет надёжно защищена от холодных потоков воздуха, а пребывание внутри станет комфортным в любую погоду.
Видео: хозблок, к которому можно пристроить беседку
https://youtube.com/watch?v=Plj2V3Bm5ds
Реализация проектов совмещённого строительства поможет рационально использовать свободную площадь дачного участка, сэкономить материалы, денежные средства, время и силы на монтаж. Выбрать вариант объединения помещений сможет каждый владелец, учитывая свои предпочтения и возможности.
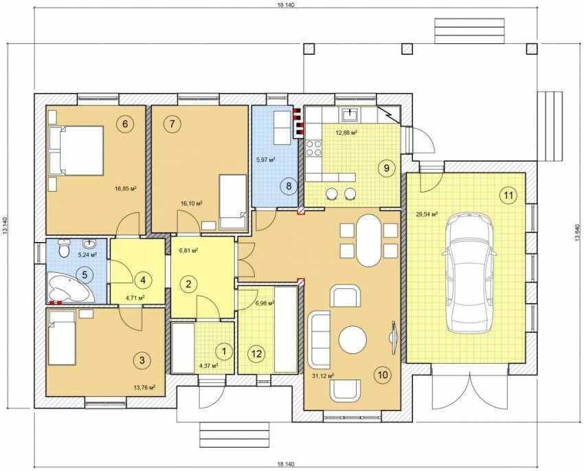
Проект дома в один этаж с гаражом Z131
Этот типовый проект кардинально отличается от предыдущего. Его площадь немного больше – 138 кв.метров. Да и сам дом рассчитан на проживание семьи из 3-4 человек. Также отличие заключается и в возможности обустройства мансарды.
- Фасад дома можно смело отнести к категории скромного, но современного и привлекательного;
- Вход в дом является крытым, и выполнен в виде небольшой веранды, где можно расположить небольшой столик и пару пленных стульев;
- На одной линии с входной дверью расположены и гаражные ворота. Планировка не предусматривает возможность прохода в дом из гаража;
- Площадь гаража составляет немного больше 20 квадратов, что дает возможность расположить лишь один автомобиль;
- Из гаража можно пройти в небольшое дополнительное помещение, которое может использоваться как техническое, а из него выйти на небольшую, но очень уютную террасу;
- За входной дверью есть небольшая прихожая удобной квадратной формой, в которой предусмотрено место для большого шкафа;
- Далее мы видим Г-образный коридор, из которого можно попасть в 7 разных комнат. Такая форма прохода позволила сделать все комнаты не проходными, а изолированными. Это несомненный плюс данной планировки;
- В доме есть три полноценные спальные комнаты с местом для шкафа-купе, в каждой из которой есть большое окно;
- Между двумя спальнями расположен первый санузел, достаточно просторный для размещения всего необходимого;
- Справа по коридору расположен второй, более скромный по размерам санузел с душевой кабиной. Это создает дополнительное удобство, когда все члены семьи собираются куда-то одновременно;
- Напротив него есть помещение, которое можно использовать в качестве рабочего кабинета или небольшой библиотеки. Или придумать свой вариант обустройства. Возможно, вы всегда мечтали о комнате для занятий йогой;
- Гостиная, площадью 30 кв. метров привлекает своим простором и наличием камина, который делает ее уютной при таких размерах. Гостиная совмещена с не менее просторной столовой, в которой предусмотрена небольшая, но вместительная кладовая;
- Из гостиной можно выйти на просторную террасу через большие стеклянные раздвижные двери. Этот элемент придает помещению функциональности и прогрессивности.
Проект №3 — «Z200»
Это пример удачно спланированного дома с гаражом на два автомобиля, где есть все необходимое. Общая площадь составляет 171,7 кв. метра. Комнаты в данном случае отличаются еще большим простором. Особенно это касается спальных комнат.

Помещение, предназначенное под гараж, выступает относительно основной части дома, в которой расположены жилые комнаты. Благодаря такому решению, путь к входной двери пролегает вдоль боковой стены гаража и является крытым;
Многие заказчики предпочитают именно такой вариант, потому что таким образом создается ощущение уюта и большей защищенности;
Войдя в дом, вы попадаете в небольшую квадратную прихожую, в которой справа расположен шкаф-купе. Слева есть дверь, ведущая в небольшое помещение, где можно установить еще один шкаф либо различные стеллажи;
Из этого помещения вы можете пройти сразу в гараж. Такое расположение позволяет с большим удобством переносить вещи из дома в машину или распаковывать покупки;
Из гаража есть выход в смежное с маленькой гардеробной помещение большего размера. Оно предназначено для котельной;
Примечательно, что между собой эти два помещения прохода не имеют;
Пройдя прямо через небольшую прихожую, мы попадаем в коридор, в котором расположено два санузла. В одном их них расположен только умывальник и унитаз. Второй является полноценным
И этого же коридора мы можем пройти в три раздельные спальни практически одинаковой площадь и в просторную гостиную;
Гостиной хочется уделить особой внимание, так как в ней есть сразу три преимущества. Каминная зона, которая позволит сделать зимние вечера более уютными, выход на большую крытую террасу. И самое интересное – участок с большой площадью остекления, который специально расположен в обеденной зоне;
Эта планировка порадует и тех, кто не является поклонником совмещенного пространства
Так как кухня здесь изолирована от гостиной с помощью современной стеклянной раздвижной двери;
Продумано и место хранения в столовой, которое представлено кладовой, площадью 3,3 кв.метра.
И самое интересное – участок с большой площадью остекления, который специально расположен в обеденной зоне;
Эта планировка порадует и тех, кто не является поклонником совмещенного пространства. Так как кухня здесь изолирована от гостиной с помощью современной стеклянной раздвижной двери;
Продумано и место хранения в столовой, которое представлено кладовой, площадью 3,3 кв.метра.
Обустройство веранды совместно с домом
Для большего комфорта проживания в доме допускается строительство примыкающей к нему веранды. Совмещённая конструкция требует закладки жёсткого и прочного фундамента, например, свайного либо столбчатого, усадка которого будет минимальной, а эксплуатация многолетней. Сделать веранду можно:
- встроенную или пристроенную;
- закрытую или открытую.
Веранда может быть полноценной комнатой для отдыха
Особенности проектирования дома с верандой
Чтобы сделать крышу веранды в качестве продолжения кровельной системы дома, выполняют сращивание двух стропильных систем и устанавливают распорки. Такую конструкцию можно с уверенностью назвать надёжной и гармонично сочетающейся с общим дизайном. Существуют проекты со встроенной поперёк коттеджа или присоединённой к главному фасаду верандой. Проект может иметь разнообразное дизайнерское исполнение, что зависит от вкусов и бюджета владельца.
Обустройство веранды зависит от предпочтений хозяина
Веранда, будучи пристройкой к дому, наделяет жильё следующими преимуществами:
- служит дополнительной защитой для сохранения тепла внутри жилых помещений;
- снижает воздействие резкого температурного колебания;
- способствует увеличению полезной площади;
- используется в качестве места отдыха и встреч с родными и близкими в любое время года;
- выступает дополнительным утеплением стен.
Домом с верандой уже никого не удивишь
При строительстве веранд можно использовать разные материалы: брус, дерево, кирпич, пеноблок. Лучше подбирать то же, что применялось при возведении дома. Традиционное её местоположение — лицевая часть фасада.
Веранда может располагаться вдоль одной стены или в углу дома
В случае обустройства второго входа лучше её строить во дворе. Если проект предполагает использование двух смежных стен, то конструкция получится угловая. Она отличается эргономичностью и функциональностью.
Что необходимо принимать во внимание при домостроительстве с гаражным помещением
При рассмотрении готовых проектов либо же создании собственного своего следует предусмотреть некоторые нюансы, которые отразятся на внешних, внутренних показателях удобства, эстетике, а еще технических моментах, а конкретно:
— Подъезд к гаражу лучше располагать ближе к воротам, лучше всего со стороны севера дома, чтобы южная грела и освещала территорию гостиной. При этом спальную комнату можно разместить окнами на восток, а кухню – с западной стороны. Такая планировка даст самое лучшее освещение всему зданию;
— Между гаражным помещением и комнатами лучше оснастить маленькой коридорчик, хозяйственное помещение, котельную установку или туалет, чтобы шум и сторонние запахи не мешали комфортабельному пребыванию в доме;
— Вся система коммуникаций, также их прокладка на территории гаража, обдумывается заблаговременно, не стадии планирования, во избежание лишних трат потом;
— Будет не лишним оборудование смотровой ямы для комфорта ремонта авто, а еще разных ниш и полок, где будут сберегаться инструменты.
Как говорит практика, дизайн ландшафта (расположение подъезда, дорожек, клумб и т. д.) также лучше обдумывать до начала ремонтных работ – так территория станет иметь правильный, завершённый вид.
А если вы занимаетесь продажей недвижимости, и вас интересует Накрутка Twitch зрителей, переходите на сайт, здесь вам помогут и подскажут что и как делать.
Проекты одноэтажных домов с гаражом под одной крышей: преимущества и недостатки
Многие утверждают, что гараж должен быть расположен отдельно от здания, чтобы избежать неудобств, связанных с его использованием. Однако часто бывает так, что площадь участка не позволяет отвести для этого отдельное пространство, и приходится прибегать к совмещению двух этих зданий, объединяя их под одной крышей. И стоит отметить, что такое решение имеет свои преимущества:
финансовые затраты на строительство бесспорно уменьшаться, если отдать предпочтение такому варианту. Возведение двух отдельных зданий всегда обходится дороже, чем одно комплексное строительство;

Наличие гаража под одной крышей с домом позволит комфортно обслуживать машину в холодное время года
- эксплуатировать гараж, совмещенный с домом, намного удобнее, ведь в холодное время вы можете попасть в машину, не выходя на улицу. Кроме того, такое объединение позволяет хранить в гараже множество необходимых в хозяйстве вещей, за которыми было бы неудобно ходить в гараж, если бы он располагался отдельно от дома;
- благодаря такому объединению существенно экономится площадь. Подобные рациональные решения позволяют разместить все необходимое даже на самом скромном по размеру участке.
К недостаткам такого решения можно отнести необходимость качественной тепло- и звукоизоляции между двумя этими помещениями, поскольку в противном случае, холод из гаража будет проникать в прилегающие комнаты, а звук работающего двигателя автомобиля будет мешать домочадцам.

Благодаря объединению дома с гаражом, можно существенно сэкономить полезную площадь участка
Проекты домов с гаражом под одной крышей: варианты размещения
В процессе выбора или разработки проекта, важно заранее продумать каким образом эти объекты будут располагаться относительно друг друга. И в этом случае основной вопрос возникает как раз относительно гаража, поскольку расположение дома практически всегда очевидно
Гараж может быть расположен по одному из трех принципов:
подземный гараж обустраивается непосредственно под самим здание дома, грубо говоря, в подвале или на цокольном этаже. Такое решение позволяет существенно сэкономить пространство, а также сократить количество необходимых работ с грунтом. Кроме того, это идеальный вариант, если есть необходимость возвести гараж, пристроенный к дому, на участке, который расположен под уклоном;

Размещение гаража в двухэтажном доме необходимо планировать еще на этапе проектирования
- надземный нижний гараж располагается в основании дома, таким образом, чтобы все жилые помещения оказались как бы над ним. Этот способ также эффективен в вопросе сохранения пространства территории, однако, в этом случае повышается высота дома;
- боковой наземный гараж располагается с правой или с левой стороны дома. Главное его удобство – возможность достроить его к уже готовому дому, ведь в случае первых двух вариантов оба помещения должны проектироваться и возводиться одновременно.
Одноэтажные дома с гаражом: фото-проекты
Одноэтажные дома встречаются значительно чаще, чем строения с двумя или тремя этажами. Это связано со многими факторами, и в том числе с простотой обустройства фундамента для него, а также простотой реализации проекта. Ведь одноэтажное здание не требует наличия перекрытий, а также лестниц. В вопросе совмещения гаража одноэтажные дома самые удобные, поскольку исключают необходимость создания перепадов уровня крыши.

Боковой наземный гараж считается одним из самых практичных и удобных вариантов размещения подсобного помещения для машины
Крайне важно уделить должное внимание планировке одноэтажного дома с гаражом, и разместить все помещения таким образом, чтобы избежать нежелательного соседства. Например, это касается детской и гаража, которые не должны быть смежными. В идеале, между жилыми комнатами и помещением для хранения машины должно быть техническое помещение, кухня или санузел
В идеале, между жилыми комнатами и помещением для хранения машины должно быть техническое помещение, кухня или санузел.
Если же говорить о специфике обустройства крыши для такой конструкции, то для этой цели чаще всего прибегают к обустройству двускатной кровли, так как это самый простой и доступный в финансовом плане вариант. Однако, некоторые владельцы, не желающие использовать для своего дома стандартные решения, находят и более интересные варианты.

Пример стильного и практичного размещения гаража перед домом
Так, над домом может быть спроектирована односкатная кровля, а над гаражом – плоская. Такая ломаная конструкция отлично смотрится, вот только водосточная система в этом случае требует особенно пристального внимания.
Материалы для строительства
Выбор строительного материала играет большую роль для жилого строения. От его качества зависит долговечность дома, эксплуатационные характеристики, а также скорость строительных работ. Бесспорное лидерство остается за кирпичными постройками, которые имеют долгий срок эксплуатации, прекрасно сохраняют тепло и могут иметь самые причудливые формы с изгибами, эркерами и прочими архитектурными особенностями. Также в их пользу свидетельствует отсутствие необходимости в дополнительной облицовке здания – ведь кирпич сам по себе является декоративным материалом, обладает различными цветовыми решениями.
На сегодняшний день довольно популярны дома, построенные по каркасной технологии. Возведение одноэтажных построек проводится в короткие сроки, не требует усиленного фундамента, однако без дополнительной внешней отделки здесь не обойтись. Преимуществом является разнообразие возможных форм строений, даже самых необычных, как, например, купольные постройки.
Дерево – наиболее чистый и дышащий материал, который обеспечивает прекрасную вентиляцию помещения. Древесина обладает высокими декоративными качествами, теплоизоляцией, но в то же время является наиболее пожароопасной, поэтому вопрос о рациональности постройки дома из дерева с гаражом остается спорным.
Современные технологии позволили получить такие материалы для строительства, как газо- и пеноблоки, которые за счет своей внутренней пористости обеспечивают превосходный микроклимат внутри здания. Их достоинствами также являются солидные размеры отдельных блоков, благодаря чему одноэтажный дом можно построить довольно быстро.
Дом из ракушечника по праву можно назвать «целебным» – материал за время обработки напитывается морской солью, вбирая в себя большое количество йода. Строение обладает хорошей звуко- и теплоизоляцией. Недостатком выступает высокая стоимость сырья.
Планировка дома со встроенным гаражом
Такую планировку могут иметь любые дома. Рассмотрим спроектированные по этому типу здания различной этажности.
Одноэтажный дом
Для удобства проживания применяется зонирование. Общая площадь этажа делится на две части:
- Гаражное помещение, к которому могут примыкать: подсобка, мастерская, кладовая, котельная;
- Жилая зона.
Въезд в гаражный бокс целесообразно размещать с той же стороны, что и главный вход.
Вход в жилую зону из технической осуществляется через тамбур, который выполняет роль буфера для защиты от шума, выхлопных газов. Непосредственная близость к кухне удобна, когда нужно занести в дом продукты из магазина или кладовки.
Размеры жилого крыла зависят от состава семьи, количества помещений. Габариты 10*10 метров позволяют комфортно разместить большую кухню, гостиную, 2 спальни, кабинет.
Деление помещений на техническую и жилую зоныИсточник https://hotplans.by/wp-content/uploads/2018/08/P163-Plan-1024×895.jpg
Такой дом со встроенным автогаражом подходит для постоянного проживания и, благодаря простой форме, легко размещается на участке.
Въезд для автомобиля размещается с той же стороны дома, что и основной вход.Источник www.kbprojekt.pl
Рекомендованные размеры гаража на 1 машину – 4*6 м. Это обеспечивает удобный въезд, пространство для обслуживания машины, место для хранения запчастей. Рассчитать длину и ширину под конкретный автомобиль можно, если прибавить к длине машины 1,5 м, а ширину замерить с открытыми дверями и прибавить 0,5 м.
Если внутри помещения нужно разместить 2 автомобиля, то его минимальные размеры – 5,5*6 м при въезде в одни ворота и параллельной парковке машин. Длину и ширину следует увеличить, если в помещении планируется устроить места для хранения или необходимо разместить дополнительно мотоцикл, лодку, другую технику.
План дома с гаражом на две машиныИсточник belgorodproekt.ru
При постановке автомобилей друг за другом размеры бокса должны быть не менее 4*11 м. Такой гараж может быть с одним выездом или с двумя (сквозной проезд). Помещение получается протяженным, поэтому при планировании могут возникнуть сложности, так как вдоль технической зоны следует размещать нежилые помещения.
Дом в два этажа или с мансардой
При планировке дома, предусматривающей встроенный автогараж, зачастую бывает необходимо увеличить жилую площадь за счет мансардного или второго этажа. В этом случае следует помнить, что над гаражным помещением нежелательно размещать спальни. Больше всего подходят для расположения над ним:
- спортзал;
- бильярдная;
- холл;
- подсобные помещения;
- санузлы;
- зимний сад;
- терраса.
Зимний сад подходит для размещения над гаражным помещением.Источник www.sov-dom.ru
При разработке планировки двухэтажного дома с гаражом необходимо продумать набор помещений на разных этажах. Обычно на первом, помимо бокса и других технических помещений, размещают кухню, гостиную, при необходимости комнату для гостей или спальню для пожилого человека. Это позволяет скомпоновать помещения так, чтобы комнаты для сна не делать смежными с гаражом.
Оптимальное соседство для гаража – терраса, котельная, гардероб, холл.Источник dsmango.ru
В случае с мансардным этажом, место для хранения автомобиля часто размещают под скатом кровли, не располагая над ним никаких комнат. На первом этаже планировка должна быть выполнена с соблюдением тех же основных правил, что и для одноэтажного дома.
Гараж под скатом кровлиИсточник i2.wp.com
Встроенный гараж в цокольном этаже
Подходит для участков со сложным рельефом, глубоким залеганием грунтовых вод. Без серьезных затрат на гидроизоляцию автомобиль будет повержен коррозии из-за сырости. Дополнительно нужно будет выполнить водоотведение с участка, чтобы избежать угрозы затопления нижнего уровня.
Кроме этого, потребуется оборудование наклонной площадки для въезда, а также дренаж по периметру здания, чтобы дождевая и талая вода не затекала в гараж.
На участках с перепадами рельефа устройство гаража в цокольном этаже оправдано и выглядит эффектно.
Дом в двух уровнях на сложном рельефеИсточник gtspeed.us
Если цокольный этаж занимает всю площадь здания или большую ее часть, кроме гаражного бокса там удобно разместить сауну, комнату отдыха, котельную, подсобные помещения.
Размещение в цокольном этаже технической зоны и сауны.Источник zap-dom.ru
Заключение
В завершение, хочется несколько строчек посвятить установке угловых ванн, которые вы видите на фото. Они ставятся почти так же, как и их прямоугольные аналоги, разница заключается только в технике крепления изделий к стенам. Угловая сантехника пристегивается к боковым стенкам в трех точках: в одной по короткой стороне, и в двух – по длинной.
В принципе, это все, что нужно для того, чтобы успешно провести самостоятельный монтаж ванны своими руками. Как правило, все непонятные моменты выясняются в процессе выполнения работ, или при более внимательном изучении заводской инструкции.














