Идеи по перепланировке помещений и расстановке мебели
Перепланировка квартиры — хлопотное и затратное мероприятие, а в некоторых случаях просто невыполнимое. Однако существует ряд вариантов, которые можно воплотить в жизнь.
Совмещение кухни и зала
В результате объединения соседних помещений образуется большое открытое пространство. Левая половина представляет собой зону отдыха с диванной группой и телевизором. У противоположной стены располагается кухонный гарнитур. В центральной части находится обеденный стол.





Совмещенный санузел
Объединение туалета и ванной комнаты даст возможность без проблем разместить все необходимое. Но если в квартире одновременно проживает более двух человек, то стоит тщательно взвесить все «за» и «против».



В этом примере общая площадь санузла после перепланировки составила 4,3 м2. В комнате получилось установить: большую ванну угловой формы, раковину, стиральную машинку, унитаз и узкий шкаф.


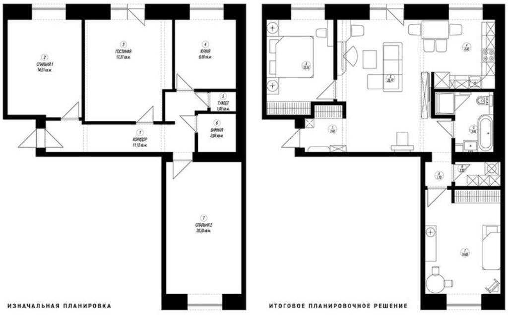
Избавляемся от проходных комнат
Помещения проходного типа — частое явление в домах старой застройки. Перепланировка позволит исправить подобные недостатки. Проблема решается возведением гипсокартонной перегородки.



Увеличение комнаты за счёт лоджии или балкона
Дополнительное пространство в зависимости от расположения можно использовать в качестве гардеробной, кабинета, уединенного места для отдыха или обеденной зоны.
Ниже несколько фото трёхкомнатной квартиры после перепланировки.




Гостиная плюс коридор
Подобный прием позволяет увеличить площадь зала, впустить солнечный свет во входную зону. Как это будет выглядеть, можно понять, сравнив проекты трехкомнатной квартиры до и после проведения работ.



Дизайн трехкомнатной квартиры в панельном доме
Какая бы не была большая квадратура жилья, комфорт и уют на первом месте. Изначально дизайн предусматривался для кирпичных домов. Это говорит о том, что не каждая вариация дизайна подойдет именно для панельных домов. Такие дома не особо могут похвастаться размерами своего пространства и поэтому, даже известный классический стиль не сможет быть осуществлен в такой недвижимости.

Вне зависимости от размеров квартиры, дизайнерские идеи должны иметь свои рациональные границы. Для планировки панельной квартиры существует уйма вариантов. Дизайнеры предлагают нам достаточное количество различных стилей. Но учтите, что не все стили подходят для панельной квартиры.
Интерьер комнаты с ванной
Обустройство комнаты с ванной в трехкомнатных помещениях – задача простая, если учесть, что ее площади хватает для установки стационарной ванны, раковины и стиралки. Однако, ценители современных течений дизайна могут отойти от привычной комплектации, остановив собственный выбор, например, на кабинке душа с верхней «тропической» лейкой и гидромассажной функцией.
В качестве компромисса можно выбрать более большой поддон с возможностью обыкновенного купания либо же соединить ванную и душ. Установить то и другое отдельно выйдет разве что при объединении сантехнического узла – в данном случае под кабинку отводится один из углов.
Планировка 3-х комнатной квартиры: что можно изменить
Трехкомнатные квартиры могут сильно отличаться по общей площади, что влияет на всю картину предстоящего ремонта. Если квадратных метров мало, придется проявить фантазию и находчивость на пути к получению просторного и комфортного места для жизни. В то же время даже дизайн 3 х комнатной квартиры 80 кв. м основывается на перепланировке помещения с целью расширить его до максимально возможных размеров.
Расположение комнат, близость кухни и санузла, узкий коридор и фактическое отсутствие прихожей – все это ограничения, от которых не получится полностью избавиться даже в результате очень основательного ремонта. Но есть несколько способов их минимизировать. А именно:
-
перепланировка квартиры при помощи совмещения смежных комнат и помещений
-
удаление (максимально возможное) перегородок и стен с целью объединить все комнаты в просторную квартиру-студию
Для увеличения полезной площади отдельно выбранной комнаты, ее можно объединить со смежным помещением, если это позволяют конструктивные особенности стен и перекрытий. Если стена между комнатами несущая, то демонтировать ее запрещено. Совместить помещения в таком случае можно при помощи менее затратных и сложных приемов: например, вместо распашных дверей установить раздвижные или прозрачную перегородку, выполняющую скорее декоративную функцию.
Этот способ предполагает конструктивные изменения прежде всего в самых маленьких помещениях. Решив демонтировать перегородку между кухней и комнатой, определитесь с ролью коридора. Если кухня очень мала по площади, то коридор лучше присоединить к ней, а вход на кухню организовать из комнаты. Другим вариантом может быть увеличение площади санузла за счет объединения его с коридором, если продлить перегородку между кухней и ванной комнатой. Тогда вход в ванную необходимо разместить со стороны прихожей.
Автор проекта Эльвира Станкевич
Объединяя балкон со спальней, помните о требованиях техники безопасности. Такие изменения потребуют разрешений официальных структур типа БТИ и архитектурного бюро, поскольку повлекут изменение фасада дома и могут представлять угрозу для безопасности ваших соседей. Это касается демонтажа стен и перегородок внутри квартиры – только официальное разрешение на перепланировку защитит вас от штрафов и претензий в будущем.
Еще более строгим требованиям подчиняется второй вариант перепланировки – создание квартиры-студии с максимально большим общим пространством. Даже квартиры в самых современных зданиях чаще всего имеют стены, которые запрещено сносить. В таком случае пригодятся дизайнерские приемы, позволяющие создать ощущение единого пространства без ущерба для безопасности.
Потолок в несколько уровней, подиум, встроенный шкаф вместо антресолей, светлые тона в отделке и мебели, зеркала и освещение, максимально приближенное к естественному, – эти детали помогут зрительно расширить границы квартиры и визуально увеличат ее площадь.
Дизайн 3-комнатной квартиры
Интерьер квартиры-студии
Кухня-столовая
Красивая кухня-гостиная
Дизайн 3-х комнатной квартиры
Картины в интерьере
Небольшая кухня
Детская комната для девочки
Дизайн от Анны Шабинской
Если ваша квартира позволяет снести максимум перегородок, то подчеркнуть функциональность каждой зоны поможет разное напольное покрытие: кухонной зоне отлично подойдет плитка, а гостиной и спальне – паркет или ламинат. Тип и уровень освещения также подчеркнут необходимые отличия.
Дизайн 3-х комнатной квартиры в панельном доме
Дизайн интерьера трехкомнатных квартир, проекты интерьеров
Дизайн интерьера
Дизайн интерьера
Ремонт и отделка
Трехкомнатные квартиры
Все объекты
Квартиры-студии
Однокомнатные квартиры
Двухкомнатные квартиры
Большие квартиры (более 3 комнат)
Коттеджи и загородные дома
Коммерческие помещения
Офисы
Салоны красоты
Магазины
Кафе, бары, рестораны
Медицинские учереждения
Все помещения
Гостиные
Кухни
Кухни-гостиные
Ванные комнаты
Спальни
Детские
Комнаты для подростка
Душевые комнаты
Столовые
Санузлы
Кабинеты
Гардеробные комнаты
Лоджии, балконы, террасы
Холлы
Прихожие
Коридоры
Комнаты для гостей
Хозяйственные комнаты
Бильярдные
Бассейны
Магазины
Офисы
Салоны красоты
Кафе, бары, рестораны
Медицинские учереждения
Спортивные залы
Домашний кинотеатр
Все стили
Американская классика
Английская классика
Ар-деко
Классика
Лофт
Минимализм
Неоклассика
Поп-арт
Прованс
Скандинавский
Современная классика
Современный
Хай-тек
Эклектика
Санкт-Петербург, 81 м2
Современный
23 фото
Москва, 210 м2
Современный
24 фото
Москва, 124 м2
Современный
57 фото
Москва, 98 м2
Современный
27 фото
Москва, 124 м2
Неоклассика
33 фото
Санкт-Петербург, 142 м2
Современный
38 фото
Санкт-Петербург, 146 м2
Современный
38 фото
Сочи, 129 м2
Неоклассика
6 фото
Санкт-Петербург, 143 м2
Классика
1 видео
Санкт-Петербург, 112 м2
Ар-деко
13 фото
Санкт-Петербург, 96 м2
Эклектика, Современная классика
14 фото
Санкт-Петербург, 100 м2
Ар-деко
17 фото
Санкт-Петербург, 93 м2
Современный
21 фото
Москва, 124 м2
Английская классика
28 фото
Санкт-Петербург, 205 м2
Американская классика
25 фото 1 видео
Санкт-Петербург, 136 м2
Современный
19 фото 1 видео
Санкт-Петербург, 126 м2
Классика
22 фото 1 видео
Санкт-Петербург, 127 м2
Современный
16 фото 1 видео
Санкт-Петербург, 103 м2
Минимализм
20 фото 1 видео
Санкт-Петербург, 110 м2
Минимализм
18 фото 1 видео
Квартира на Ленинском
Санкт-Петербург, 114 м2
Современный
1 видео
Загрузить еще
Трехкомнатная квартира — мечта любого дизайнера. Площадь позволяет реализовать оригинальные дизайн-проекты и превратить тем самым апартаменты в настоящее произведение искусства. Для создания впечатляющего дизайна интерьера трехкомнатной квартиры понадобится много времени и стараний, но результат того стоит.
Количество жильцов, как один из критериев выбора дизайна трехкомнатной квартиры
При выборе дизайна нужно руководствоваться прежде всего количеством жильцов. например, если в квартире будет жить один человек, ее можно разделить на такие функциональные помещения, как спальня, гостиная, рабочий кабинет. Для проживания в трехкомнатной квартире семьи с двумя детьми может понадобиться небольшая перепланировка. Так как каждый ребенок нуждается в личном пространстве, желательно сделать перегородку в детской комнате. Для перегородки часто используют гипсокартон. Чтобы детская комната была максимально функциональной, вместо перегородки разместите шкаф-купе или стеллаж с книгами.
Стили оформления трехкомнатной квартиры
Как правило, дизайнеры не выдвигают жестких требований к стилистическому оформлению интерьера трехкомнатной квартиры. Все зависит от желания самих жильцов. Одни предпочитают единый стиль для всего жилья, другие же стремятся каждую комнату оформить в разном стиле. На сегодняшний день самыми популярными стилями считаются следующие:
- Модерн. Для отделки используется гипсокартон, обои пастельных тонов, натяжные потолки, ламинат, декоративная штукатурка.
- Кантри. Данный стиль предусматривает оформление интерьера в ярких и теплых тонах (каштановый, бежевый, желтый). Приветствуются двухуровневые потолки.
- Лофт. Не терпит искусственных материалов. Для обустройства отдельных зон помещения используют камень, дерево и обои нейтральной цветовой гаммы. Пол, как правило, паркетный, а потолок оставляют простым одноуровневым. Для отделки ванной идеально подойдет крупная керамическая плитка.
- Мегаполис, сити и др. Характерные черты современных стилей — яркие и сочные цвета, а также многоуровневые потолки с подсветкой. Для отделки часто выбирают пластик и декоративный камень.
В интернете есть много фото дизайна трехкомнатной квартиры, рекомендуем ознакомиться с ними перед выбором стиля оформления апартаментов.
Модные тенденции
Обустраивая помещение в современном стиле, вы не только отдаете дань моде, но и грамотно используете площадь, что обеспечит красоту всей квартиры:
- стиль комнат должен быть единым. Это не означает использование одинаковых цветов или мебельных предметов, однако выходя из классической спальни, вы не должны оказаться в гостиной стиля «модерн».
- весьма кстати будет использование модных галтелей и дверей из дерева, ДСП, шпона или ламината.
- в тренде сезона отличное освещение, в результате чего не нужно увешивать окна массивными портьерами, лучше используйте воздушные гардинные полотна или современные жалюзи. Не помешает дополнительное устройство светодиодов.
- позаботьтесь о наличии в квартире гардеробной или кладовой, куда вы с легкостью можете отправить множество различных вещей.
Дизайн трехкомнатной квартиры: ТОП-100 фото лучших идей оформления
Для трехкомнатной квартиры огромный выбор дизайнов. Малогабаритные помещения не имеют возможности.
Большая площадь позволяет применить любую смелую идею. Современный дизайн трехкомнатной квартиры лучше доверить профессиональным дизайнерам.
Учитывая состав семьи, рассматривается дизайн-проект, зонирование комнат
Уделяется внимание не только стилистическому решению, но и практичности
Нужно в самом начале обратить внимание на двери, чтобы удобно открывались и не были препятствием для домочадцев. Можно выбрать раздвижные двери
Количество и удобное расположение розеток и выключателей – еще одна важная деталь, о которой забывают.
Чаще начинается дизайн с увеличения площади – перепланировки, но иногда достаточно перегородки. С Запада пришла мода на открытое пространство, это применяется в разных проектах. Не объединяют лишь спальни и, конечно, ванные.
Правила перепланировки и демонтажа
Можно расширить площадь за счет лоджий, но придется хорошо ее утеплить. Отличной идеей будет теплый пол, можно вынести обогреватель на лоджию.
Недопустимо за счет кухни или смежных комнат увеличивать площадь санузлов. Надо учесть, что в несущих конструкциях категорически запрещается устанавливать проемы больше 1,2 м и не ближе 1,5 м к внешним краям стен. Один проем на 1 несущей стене.
На балконах части под окнами и оконный стеклопакет тоже нельзя демонтировать. Запрещено делать дверь в санузел из кухни.
Главное, не надо забывать, что перепланировка должна официально оформляться. Иначе в случае продажи жилья сразу возникнут проблемы. Все изменения в квартире нужно проводить в соответствии с нормами строительства.
Дизайн трешки в панельном доме
Независимо от площади жилья, необходимы рациональность и максимальный комфорт. В панельных домах жилье дешевле, чем в кирпичных. Среди множества стилей, не все можно применить в панельном доме.
Дизайн трехкомнатной квартиры в классическом стиле почти нереально создать в такой квартире, для него предполагается много пространства, чего нет в панельных домах. При маленьких площадях будет смотреться скучно и не органично.
3-комнатная квартира (45 кв. м)
При средней площади 45 кв. метров трехкомнатной панельной квартиры, лучше использовать минимализм, где немного мебели и элементов интерьера. Так можно освободить площадь.
Выбрав деревенские мотивы, кухня маленьких размеров станет уютным милым уголком. Тона теплого спектра с большим количеством текстиля помогут создать удобства и комфорт.
Кто любит хай-тек с необычными формами и линиями, нужно много металлических деталей, новейшие технологии и отсутствие пропорциональности.
При любом стиле важно грамотно организовать пространство. Ранее считалось, что в панельном доме невозможно сделать перепланировку
С появлением новых материалов и способов отделки, появилась такая возможность.
Комнаты сначала разделяем по функциональности. Большая комната – гостиная для приема гостей будет в светлых гаммах. Другие помещения могут быть в разных стилях, будет необычно и ярко.
3-комнатная квартира (60 кв. м)
Более сложная задача – дизайн интерьера трехкомнатной квартиры с большой площадью. Здесь нужен опытный дизайнер. Каждому человеку комната с учетом его желаний и вкуса. Можно применить фантазию.
Часто объединяют гостиную с кухней, получается другой интерьер.
В детской комнате надо учесть возраст ребенка. Для младенца нужен пеленальный столик, кроватка, шкаф.
Для спальни идеальны плавные округлые формы и нежные оттенки.
Дизайн квартиры студии — 150 фото самых модных идей в интерьере студии
Оригинальные дизайн-проекты для 3-комнатных квартир приобретают большую популярность. Это связано с более доступными ценами на квартиру, чем на частный коттедж.
Большая площадь – главное преимущество, которое позволяет воплотить в жизнь многообразие оригинальных и комфортных интерьеров для большой семьи.
Как обустроить маленькую трёшку?
При грамотном дизайне даже малогабаритная квартира может стать комфортной для проживания большой семьи. При оформлении выбирайте современный стиль и нейтральную гамму. Не стоит перегружать дом вычурной отделкой и мебелью — это уменьшит помещения визуально. За основу следует взять белые оттенки, отражающие свет и наполняющие интерьер воздухом.
Тщательно продумайте освещение. Учитывайте количество естественного света из окна: чем его меньше, тем больше потребуется светильников. Подсветите рабочее место и обеденный стол на кухне, создайте удобное освещение для работы и отдыха, а также ночных пробуждений.

- Выбирайте многофункциональную мебель — раскладной диван, кровать с отсеком для хранения, раздвижной стол, штабелируемые табуреты.
- Приобретайте встроенную технику.
- Задействуйте пространство под потолком при помощи навесных шкафчиков.
- При выборе мебели отдайте предпочтение простым формам без лишних украшений.
- Добавьте зеркал.
- Не переусердствуйте с узорами на обоях и ткани, а также открытыми полками — дизайн от этого лишь выиграет.


Проектирование квартир по кв. м
Варианты на первичном и вторичном рынке недвижимости:
- Сталинка – общая площадь 32-50 м2 у однушки. Потолок высотой (3 м) и встроенные шкафы. Санузел раздельный или совмещенный.
- Хрущевка – малогабаритное жилье с некомфортной планировкой. Потолок высотой 2,5-2,7 м, санузел, совмещенный с ванной, внутренние перегородки с плохой шумоизоляцией. Общая площадь – до 33 м2.
- Брежневка имеет изолированные помещения с окнами по разным сторонам дома. Есть место для встраивания прихожей. В однушке обычно совмещенный санузел, стены дома – ж/б, общая площадь – до 40 м2.
- Стандартная квартира имеет удобную планировку, часто с эркерами. Потолок высотой 2,5-2,8 м, раздельный санузел, большая кухня, лоджия, встроенные шкафы и кладовки-ниши, общая площадь – до 50 м2.
- Квартира улучшенной планировки имеет потолок высотой 2,5 м, помещения изолированные, раздельный санузел, лоджия, встроенные шкафы и антресоли, общая площадь – до 50 м2.
- Современная квартира имеет просторные помещения в панельном доме независимо от их функционального предназначения. Потолок высотой 2,8 м, санузел раздельный, общая площадь – до 80 м2.

Жилье 20 кв. м
Зональность:
- Зал может служить спальной комнатой.
- Гостиную совмещают с кухней, рабочим кабинетом или спальней.
- На кухне, в гостиной и столовой располагают зону отдыха.
- Рабочий кабинет можно оборудовать на балконе.

Квартиры 25 кв. м
Функциональные зоны: гостиная, кухня, место для прихожей и спальни. Санузел совмещенный. В таких небольших комнатах спальню невозможно отгородить от гостиной, поэтому чаще всего используют диван-трансформер.

Жилая площадь 31 кв. м
Основная задача в малогабаритных квартирах – деление пространства на зоны. Для предварительной визуализации существует специальная программа, например, АвтоКАД или 3D MAX. На площади в 31 м2 можно разместить гостиную, кухню с электроплитой, столовую зону. В санузле, на полу и отдельных стенах можно положить кафель большого размера.

Комната 32 кв. м
Увеличить пространство можно объединением кухонной зоны и жилого помещения. Для планировки квартиры 32 кв. м необходимо:
- Обозначить места нахождения функциональных зон.
- Выбрать концепцию дизайна, чтобы разработать линию интерьера.

Проект 33 кв. м
Как и в предыдущих вариантах, предпочтительнее сделать квартиру-студию. Дизайнерские приемы позволяют совмещать как отдельные предметы мебели, так и помещения.

Жилая площадь 35 кв. м
Визуальное расширение предусматривает некоторую перепланировку: снос перегородок и дверей, исключая туалет. Если есть балкон или лоджия, их можно утеплить, убрать часть стены и провести отопление.

Квартира 36 кв. м
Мелкие элементы интерьера можно подобрать потом, а основным стилем считается минимализм или хай-тек. Это простые и лаконичные формы, маленькая площадь занятости, универсальность и строгость линий.

Жилое пространство 38 кв. м
В квартирах площадью 38 кв. м можно получить маленькую спальню и большую кухню или гостиную либо наоборот. Такой вариант больше подойдет для проживания одного человека или семьи без детей. Если есть балкон или лоджия, то их совмещение с кухней даст больше пространства, и можно сделать детскую комнату.

Площадь 39 кв. м
В таком дизайне часто используются раздвижные двери (скрытый пенал), значительно экономящие пространство. Ниши в стенах позволяют обустроить встроенные системы хранения. При наличии лоджии устанавливают мебель-трансформер для экономии места, то же самое делается и на кухне. Санузел обычно совмещенный, поэтому используется компактная мебель и сантехника.

Проект 40 кв. м
Чтобы помещение выглядело просторнее, все отдельные зоны необходимо связать друг с другом. Кухню объединяют с залом, в ванную комнату установлена прозрачная дверь, а спальное место отгорожено вертикальными полупрозрачными жалюзи.

Особенности оформления горизонтальных и вертикальных поверхностей
Настенные покрытия.
3 комнатная квартира обладает огромным пространством, а значит, располагает большим количеством различных плоскостей. Можно создать эффект объемного пространства декорировав стены в технике венецианской штукатурки. Состав из натуральных минералов, обеспечивает устойчивость такой отделки к грязи и различным повреждениям. Но это вид декора стен весьма дорогостоящий. Поэтому популярностью в декоре пользуются обои, краски, и пластиковые панели.
Совмещенная гостиная с кухней станет отличным решением
Большие зеркала на стенах сделают комнату визуально больше
Для создания уютной атмосферы помещения отлично подойдет оклеивание стен обоями. Декоративные панели способны внести цветовое разнообразие и воплотить изысканные дизайнерские идеи. Дополнительными элементами творчества могут стать молдинги. В современных стилях интерьера дизайнеры применяют в основном молдинги из полимерных материалов: полиуретана и пластика. Из них можно выполнить наличники для дверей и окон. При совпадении оттенка с цветом оконной рамы, визуально увеличит размер окна.
Круглые зеркала в виде тарелок на стене отличная идея украшения спальни
Большое круглое зеркало в спальни выглядит очень необычно
Деревянные планки с красивой подсветкой отлично дополнят дизайн гостиной
Напольные покрытия.
Дизайн пола может быть выполнен различными материалами. Дешевые — неприхотливы в уходе, тогда как дорогостоящие – могут требовать особого внимания.
Линолеум недорогой, экологичный и простой в уходе материал, производится в различных цветовых вариантах, и орнаментах с имитацией натуральных материалов: камень, плитка, паркет.
Ламинат – это прочное и долговечное покрытие, имитирует ценные породы дерева. Укладка ламината в отличие от линолеума более трудоемка. Такое покрытие создает теплую атмосферу уюта.
Вариантов дизайна кухни очень много
Кирпичная стена в спальне с подсветкой отлично дополнит дизайн
Инструменты и материалы для капитального ремонта
Перечень необходимых материалов:
Для отделки поверхностей потолка и стен – грунтовка, мастика, сухая смесь бетона, шпаклевка, подложка, звуко- и гидроизоляция, молдинги, водоэмульсионная краска, саморезы, дюбеля, гвозди, гипсокартон, покрытия пола, профиль, направляющие, обои, плитка;
Для установки сантехники – водопроводные и канализационные трубы, соединители, крепления, краны;
Для монтажа проводки – электро-щиток, медные или алюминиевые кабели, розетки, выключатели.
Состав перечня материалов может отличаться, это зависит от уровня сложности работ.
Белая кухня — просто и красиво
Отличным решением станет совместить гостиную и кухню
Кухня в кремовом цвете смотрится очень красиво
Необходимые инструменты
- Стремянка.
- Рулетка, угольник, плотницкий уровень.
- Плотницкий набор: молоток, струб, долото.
- Электроинструменты: дрель, шуруповерт, лобзик.
- Инструменты для декора поверхностей: шпатели, скребки, валики, малярные кисти, наждачная бумага (для шлифовки поверхностей), лента для малярных работ.
Это оптимальный набор для ремонта квартиры.
Хорошая идея дизайна гостиной для большой квартиры
На такой кухне готовить будет одно удовольствие
Правила оформления
Для успешного окончания каждого ремонта его стоит выполнять по тщательно продуманному плану. Если речь идет о квартире с тремя комнатами, то тут не получиться обойтись без комплексного подхода, начав с распределения метров квадратных и завершая расположением домашних вещей
При этом нужно брать во внимание кол-во жителей, их возраст, жизненный образ, привычки и предпочтения, физические характерности. К примеру, энергичная молодая пара может предпочтение отдать минимализму открытого пространства, тогда как семья с 2-мя детьми будет нуждаться в добавочном зонировании комнат, вместительной столовой и кухонной комнате, большем количестве шкафов.
Коммуникации – первое, что необходимо установить до начала каких-нибудь работ по отделке
Трубная разводка и электропроводов обязана быть выполнена очень точно и профессионально, чтобы уменьшить вероятность аварий. Из-за этой причины не нужно экономить на деталей деталях. Если они будут не качественными, то любое протекание воды или короткое замыкание может привести к существенной потере средств.
Утепление и шумоизоляция – второй основополагающий этап квартирного ремонта. Для уютной жизни обивка потолков и стен уплотняющим материалом и специализированными мембранными тканями нужнее, чем очень красивые обои или картины. Отделиться от шума улиц помогают сегодняшние ПВХ окна, которые, более того, мешают теплопотерям.
Выбор единого стилевого решения навряд ли вызовет затруднения у хозяев квартиры в три комнаты – в данном вопросе им можно понадеяться исключительно по собственному вкусу. Однако, рекомендуется соотнести характерности приглянувшегося дизайна с объективными свойствами помещений: в малогабаритных комнатах предпочтение отдать простым формам и базовым цветам, а в намного больших – задействовать отважные ударения и яркую цветовую палитру.
Удачные примеры и лучшие варианты
В современном городе в настоящее время при строительстве новых микрорайонов с многоквартирными домами появляется большое разнообразие планировок квартир. Самыми популярными считаются трехкомнатные. Они проектируются строятся как в панельных, так и в более престижных кирпичных домах.
Самым лучшим вариантом считается студия со свободной планировкой. Такая нестандартная квартира позволяет проявить собственную дизайнерскую фантазию и смоделировать для себя наиболее удачный вариант для комфортного проживания.
Планировки трехкомнатных квартир бизнес-класса могут включать в себя высокие потолки, а также несколько санузлов. Конечно же, общая площадь такой квартиры также будет больше обычной.
Также следует отметить, что покупка трехкомнатной квартиры – это выгодное инвестирование, так как цены на такое жилье постоянно растут.

7фотографий
Рассмотрим примеры трехкомнатных квартир. Здесь представлена планировка новой трехкомнатной квартиры. Имеется большой и просторный коридор-холл, где свободно расположены шкафы для одежды, обуви и постельного белья.
Все комнаты изолированы друг от друга. В правой части находится раздельный санузел и кухня. При желании санузел можно сделать совмещенным, что позволит разместить там стиральную машину. В левой части расположены две спальни – одна больше, другая поменьше. В центре находится гостиная, которую можно совместить с кухней, позволив тем самым визуально и физически увеличить общее пространство.
В целом, довольно удачная и современная планировка для семьи из трех или четырех человек.

Еще один вариант планировки трехкомнатной квартиры. Здесь имеется коридор в виде буквы Г. А вот раздельный санузел совместить при всем желании будет довольно сложно, так как ванная и туалетная комнаты находятся в разных частях коридора.
Гостиная довольно просторная и имеет выход на балкон. Выйдя из нее через коридор, мы попадем в кухню. В конце коридора по обе стороны от ванной комнаты слева и справа расположены две спальни.
Все комнаты изолированы друг от друга. Вариант данной квартиры, в целом, довольно хорош, но при желании в нем возможна даже кардинальная перепланировка комнат со сносом стен.

Рассмотрим еще вариант планировки трехкомнатный квартиры, имеющий небольшие отличия от предыдущих вариантов.
Все комнаты изолированы друг от друга. При входе в квартиру мы попадаем сразу в длинный и прямой коридор. Слева от него расположены три спальни. Первые две имеют выход на балкон. В третьей, более просторной спальне, имеется своя гардеробная.
Туалет и ванная разделены друг от друга и, как и во втором варианте, не имеют смежных стен. Справа по коридору, напротив туалетной комнаты, расположена большая и вместительная кухня-гостиная. Она также имеет выход на весьма большой балкон, где можно уютно разместиться целой компанией. В общем планировка довольна хороша и имеет ряд своих особенностей и достоинств.


В заключение хочется сказать, что в настоящее время в приоритете не только комфорт и роскошь квартиры, но и практичность и функциональность. Поэтому упор в современных постройках делается именно на это. Если же хочется сделать более комфортной жилье старого фонда, например, «хрущевку», то вполне можно составить проект перепланировки, воспользовавшись помощью дизайнера. Он отобразит на схеме новое расположение комнат.
Подробнее о современном проектировании трехкомнатных квартир вы узнаете из следующего видео.








